5 Exécution des ouvrages
5.1 Couverture à pureau entier
5.1.1 Prescriptions générales
La couverture à pureau entier est une couverture dans laquelle les ardoises sont posées en lignes horizontales, les rangs supérieurs chevauchant les rangs inférieurs, les joints étant alternés (Figure 6).
 : Couverture en ardoises en fibres-ciment/NF DTU 40.13 P1-1 (décembre 2009)/image/fig_ACFG_1_6.png)
Figure 6 Couvertures à pureau entier
5.1.1.1 Limitation d'emploi
Les Tableaux 4 et 5 précisent les limites de hauteurs pour lesquelles les dispositions concernant la pose à pureau entier sont applicables, en fonction du mode de fixation de l'ardoise et de la zone de vent par référence à la carte des règles NV 65 modifiées.
 : Couverture en ardoises en fibres-ciment/NF DTU 40.13 P1-1 (décembre 2009)/image/tab_ACFG_1_4.png)
Tableau 4 Limitation de hauteur des bâtiments fermés couverts en ardoises en fibres-ciment — Pose à pureau entier
Tableau 5 Limitation de hauteur pour les bâtiments ouverts couverts en ardoises en fibres-ciment — Pose à pureau entier
5.1.1.2 Pente minimale et recouvrement
Les prescriptions applicables sont données :
au Tableau 6 pour la pose aux clous ;
au Tableau 7 pour la pose aux clous et au crampon-tempête ;
au Tableau 8 pour la pose au crochet ou aux clous et au crochet.
La valeur minimale du recouvrement indiquée dans les Tableaux 6, 7 et 8 est fonction :
de la pente,
de la zone et de la situation (voir Annexe B) ;
de la projection horizontale du rampant (Ph) ;
du mode de fixation.
Ces valeurs sont valables pour les projections horizontales (Ph) de versants ≤ 8 m.
Le recouvrement doit être majoré dans les cas suivants :
-
+ 10 mm pour 8 m ≤ Ph ≤ 15 m ;
et
+ 10 mm en zone III situation exposée, par rapport au recouvrement correspondant en situation normale.
 : Couverture en ardoises en fibres-ciment/NF DTU 40.13 P1-1 (décembre 2009)/image/tab_ACFG_1_6.png)
Tableau 6 Pose à deux clous — Recouvrements minimaux en mm en fonction de la zone, de la situation et de la pente
Tableau 7 Pose à deux clous et un crampon-tempête — Recouvrements minimaux en mm en fonction de la zone, de la situation et de la pente
Tableau 8 Pose au crochet, ou deux clous et un crochet — Recouvrements minimaux en mm en fonction de la zone, de la situation et de la pente
5.1.1.3 Choix du format des ardoises
Le choix du format dépend du recouvrement minimal :
la hauteur des ardoises doit être au moins égale à trois fois la valeur du recouvrement minimal ;
-
la largeur des ardoises doit être au moins égale à :
deux fois la valeur du recouvrement minimal pour la pose à deux clous ou la pose au crochet ;
deux fois la valeur du recouvrement minimal diminué de 20 mm pour la pose à deux clous et un crampon-tempête ;
deux fois la valeur du recouvrement minimal augmenté de 40 mm pour la pose à deux clous et un crochet.
5.1.1.4 Mode de fixation
Les ardoises sont posées :
soit au crochet ;
soit avec deux clous ;
soit avec deux clous et un crochet ;
soit avec deux clous et un crampon-tempête.
La pose avec deux clous seuls n'est pas admise pour les formats supérieurs à 40 cm × 24 cm.
En zone 2 site exposée, en zone 3 et en zone 4 de vent (au sens des règles NV 65 modifiées), pour les formats supérieurs à 40 cm × 24 cm, le diamètre minimal du fil des crochets est de 3,0 mm.
Le choix du mode de fixation doit respecter les prescriptions des Tableaux 4 et 5.
5.1.1.5 Dispositions générales relatives aux bandes métalliques (zinc, plomb, cuivre, acier inoxydable)
Les bandes métalliques en zinc, en cuivre et en acier inoxydable à recouvrement sur l'ardoise comportent une pince en dessous et un biseau. Les bandes ou garnitures métalliques recouvertes par l'ardoise comportent une pince au-dessus.
Les bandes ou garnitures métalliques sont posées par longueur de 2 m. Leur longueur est réduite à 1 m dans les cas suivants :
bande en plomb ;
bande d'un développé supérieur à 0,40 m.
La valeur de recouvrement entre ardoises et bandes métalliques doit être identique à celui du recouvrement des rangs d'ardoises.
Le recouvrement latéral entre bandes métalliques consécutives est de 10 cm minimum.
5.1.2 Egouts
5.1.2.1 Egouts en ardoises
Le départ de la couverture s'effectue par un doublis. Le support de l'égout doit être surélevé de l'épaisseur de l'ardoise au moyen d'une chanlatte ou à l'aide d'une fourrure en bois.
La hauteur du doublis est égale à la somme d'un pureau et d'un recouvrement. Le débordement de l'égout sur le support est au maximum de 50 mm (Figure 7).
 : Couverture en ardoises en fibres-ciment/NF DTU 40.13 P1-1 (décembre 2009)/image/fig_ACFG_1_7.png)
Figure 7 Egout en ardoises
5.1.2.2 Egout avec bande métallique
Cet ouvrage est fréquemment employé pour le raccordement des versants aux gouttières, chenaux, etc.
Le départ de la couverture en ardoises s'effectue également par un doublis (paragraphe 5.1.2.1).
Le support est constitué par un voligeage jointif, tant sous le doublis que sous la bande métallique.
La partie basse du support présente une surépaisseur au moins égale à l'épaisseur de l'ardoise (chanlatte ou fourrure).
Cette surépaisseur peut être obtenue par la pince de bande métallique.
Le développé de la bande métallique est fonction de son profil, du recouvrement et de la partie apparente.
5.1.2.2.1 Egout avec bande métallique dans le plan du versant
La bande métallique est une bande à pince en tête et une pince ou un ourlet rechassé en égout.
Le recouvrement latéral entre bandes métalliques consécutives est de 10 cm minimum.
 : Couverture en ardoises en fibres-ciment/NF DTU 40.13 P1-1 (décembre 2009)/image/fig_ACFG_1_8.png)
Figure 8 Egout avec bande métallique
5.1.2.2.2 Bande métallique à larmier
5.1.2.2.2.1 Bande à larmier simple
Le départ de la couverture est exécuté soit suivant le paragraphe 5.1.2.1, l'ardoise faisant saillie de 50 mm sur le support, soit suivant le paragraphe 5.1.2.2.1, c'est-à-dire en laissant apparente la partie verticale de la bande qui comporte en-dessous une pince droite ou en biseau.
5.1.2.2.2.2 Bande à larmier à ourlet rechassé
Le larmier est constitué par une partie verticale terminée par un ourlet rechassé. Le départ de la couverture se fait par un doublis dont l'égout est à l'aplomb de la partie verticale de la bande à larmier.
5.1.3 Rives
La façon de traiter les rives dépend de l'angle α que fait la ligne de rive avec la ligne de niveau du versant. Le dernier rang d'ardoises est toujours fixé par clouage à raison de deux clous par ardoise, au moins.
5.1.3.1 Rives de tête (0° ≤ α ≤ 10°)
5.1.3.1.1 Rive de tête en ardoises (Figures 9 et 10)
Cet ouvrage ne peut être exécuté qu'en zone 1 situation protégé (voir Annexe B).
Le dernier rang d'ardoises est complété par un rang de doublage sur un support jointif. Dans le cas de la rive en « lignolet », le rang de doublage et le dernier rang débordent de 50 mm maximum sur le support.
 : Couverture en ardoises en fibres-ciment/NF DTU 40.13 P1-1 (décembre 2009)/image/fig_ACFG_1_9.png)
Figure 9 Rive de tête en ardoises
Figure 10 Rive de tête en ardoises
5.1.3.1.2 Rive de tête avec des pièces de rive en fibres-ciment
Ces pièces doivent avoir une largeur d'aile au moins égale au recouvrement des ardoises.
Le dernier rang d'ardoises est complété par un rang de doublage.
Le recouvrement latéral entre pièces de rive consécutives est de 10 cm minimum.
5.1.3.1.3 Rive de tête métallique
La garniture métallique est constituée par 1, 2, 3, ou 4 bandes façonnées du côté extérieur à la couverture en bande de rive, et du côté de la couverture en ardoises, en bande d'astragale recouvrant le dernier rang d'ardoises de la valeur d'un recouvrement (Figure 11).
Le dernier rang d'ardoises est complété par un rang de doublage.
Le recouvrement latéral entre bandes métalliques consécutives est de 10 cm minimum.
5.1.3.1.3.1 Garniture à une bande métallique
La bande d'astragale et la bande de rive sont en une seule pièce. Elle comporte sur sa partie façade en larmier soit une pince, soit un ourlet rechassé et côté couverture (partie bande d'astragale) une pince droite ou en biseau.
Sa fixation est assurée :
par clouage au recouvrement ;
coté larmier par des pattes d'agrafes ou des pattes clouées rabattues sur l'ourlet ou des clips ;
côté couverture en ardoises par des crochets.
5.1.3.1.3.2 Garniture à deux bandes métalliques
La bande d'astragale est distincte de la bande de rive et comporte en tête un relevé de 35 mm minimum qui est fixé sur la planche de faîtage et maintenu par des crochets, côté couverture en ardoises. La bande de rive à couvre-joint intégré comporte sur sa partie façade soit une pince soit un ourlet rechassé, sa fixation étant identique au 5.1.3.1.3.1. L'utilisation d'une bande de rive à cheval est limitée aux ouvrages de petite dimension (2 m maximum) et dans des sites protégés.
5.1.3.1.3.3 Garniture à trois bandes métalliques
-
1re solution
La bande d'astragale est distincte de la bande de rive et comporte en tête un relevé de 35 mm minimum qui est fixé sur un tasseau placé en tête de la couverture et maintenu par des crochets, coté couverture en ardoises. La bande de rive est fixée en tête sur le tasseau en partie inférieure ; sa fixation est identique au 5.1.3.1.3.1 . L'étanchéité est assurée par un couvre-joint métallique.
-
2e solution
La bande d'astragale peut être remplacée par une bande de filet en plomb clouée sur le tasseau de tête avec interposition d'une bandelette de clouage de 10 mm de large (bande de clouage) ou de pièces carrées de 20 mm × 20 mm (mouches) et maintenue par des crochets côté couverture en ardoises. L'étanchéité est assurée par un couvre-joint métallique.
5.1.3.1.3.4 Garniture à quatre bandes métalliques
La garniture métallique comprend une bande de rive, une bande d'astragale et un couvre-joint. Sous la bande d'astragale, est disposé une bande de filet en plomb recouvrant les ardoises d'un pureau. La fixation de la bande d'astragale sur la bande de filet s'opère par pattes en cuivre étamées soudées. La bande de filet est fixée sur le support comme indiqué au 5.1.3.1.3.3 b) 2e solution. L'étanchéité est assurée par un couvre-joint métallique.
On peut se référer à la NF DTU 40.41 concernant la fixation des bandes de rives métalliques.
 : Couverture en ardoises en fibres-ciment/NF DTU 40.13 P1-1 (décembre 2009)/image/fig_ACFG_1_11.png)
Figure 11 Exemple de rive de tête métallique à quatre bandes
5.1.3.2 Rive biaise que l'eau fuit (10° < α ≤ 35°)
5.1.3.2.1 Rive en ardoises (Figure 12)
Cet ouvrage ne peut être exécuté qu'en zone 1 situation protégé (voir Annexe B).
Les ardoises sont posées normalement et sont taillées en tranchis. Elles sont protégées par un rang de doublage qui déborde du mur ou du chevron de rive de 50 mm.
 : Couverture en ardoises en fibres-ciment/NF DTU 40.13 P1-1 (décembre 2009)/image/fig_ACFG_1_12.png)
Figure 12 Rive en ardoises
5.1.3.2.2 Rive avec pièces de rive en fibres-ciment
Ces pièces doivent avoir une largeur d'aile au moins égale au recouvrement des ardoises.
Le recouvrement latéral entre pièces de rive consécutives est de 10 cm minimum.
5.1.3.2.3 Rive métallique (Figure 13)
Une bande métallique clouée sur un tasseau est posée en recouvrement sur les ardoises d'extrémité, la largeur du recouvrement doit être au moins égale au recouvrement des ardoises.
Le recouvrement entre bandes métalliques est de 10 cm minimum.
L'ouvrage peut être réalisé à deux bandes métalliques (voir paragraphe 5.1.3.1.3.2) ou à trois bandes métalliques (voir paragraphe 5.1.3.1.3.3).
 : Couverture en ardoises en fibres-ciment/NF DTU 40.13 P1-1 (décembre 2009)/image/fig_ACFG_1_13.png)
Figure 13 Rive métallique
5.1.3.3 Rive biaise que l'eau fuit (35° < α < 90°)
5.1.3.3.1 Rive en ardoises (Figure 14)
Les ardoises d'extrémité de chaque rang (dites « arêtières ») sont suivies d'autres ardoises biaises (dites approche et contre-approche) dont le nombre est fonction de cette inclinaison.
Le Tableau 9 ci-après fixe ces règles.
 : Couverture en ardoises en fibres-ciment/NF DTU 40.13 P1-1 (décembre 2009)/image/tab_ACFG_1_9.png)
Tableau 9 Nombre d'ardoises d'approche et contre-approche
 : Couverture en ardoises en fibres-ciment/NF DTU 40.13 P1-1 (décembre 2009)/image/fig_ACFG_1_14.png)
Figure 14 Exemple de rive en ardoises
5.1.3.3.2 Rive avec pièces en fibres-ciment
Ces pièces doivent avoir une largeur d'aile au moins égale au recouvrement des ardoises.
Le recouvrement latéral entre pièces de rive consécutives est de 10 cm minimum.
5.1.3.3.3 Rive métallique
Une bande métallique clouée sur un tasseau est posée en recouvrement sur les ardoises d'extrémité. La largeur du recouvrement doit être au moins égale au recouvrement des ardoises.
Le recouvrement entre bandes métalliques est de 10 cm minimum.
L'ouvrage peut être réalisé à deux bandes métalliques (voir paragraphe 5.1.3.1.3.2) ou à trois bandes métalliques (voir paragraphe 5.1.3.1.3.3).
5.1.3.4 Rive latérale droite (α = 90°)
La rive latérale droite est constituée d'ardoises entières et de demies.
5.1.3.4.1 Rive en ardoises (Figure 15)
Les ardoises sont épaulées en tête et dans le bas, côté rive. Elles débordent le mur ou le chevron de rive de 50 mm maximum.
Toutes les ardoises de rive (entières et demies) sont fixées à deux clous. Dans les sites exposés (au sens des règles NV 65 modifiées), la rive est maintenue, en outre, sur les demi ardoises par des crochets posés horizontalement en suivant l'épaulement de la demi ardoise.
 : Couverture en ardoises en fibres-ciment/NF DTU 40.13 P1-1 (décembre 2009)/image/fig_ACFG_1_15.png)
Figure 15 Rive latérale droite en ardoises
5.1.3.4.2 Rive avec pièces en fibres-ciment
Ces pièces doivent avoir une largeur d'aile au moins égale au recouvrement des ardoises.
Le recouvrement latéral entre pièces de rive consécutives est de 10 cm minimum.
5.1.3.4.3 Rive métallique (Figure 16)
La rive est constituée par un tasseau en bois de 40 mm de hauteur au minimum, cloué sur le lattis, avec un couvre-joint et une bande de rive, d'une part et, d'autre part, par des ardoises et des noquets métalliques en rang alterné.
La largeur à plat des noquets est égale à celle d'une demi ardoise et le relief est égal à 35 mm. Leur hauteur est celle d'une ardoise.
Les reliefs des noquets sont cloués en tête et en haut du relief sur le tasseau.
La bande noquère est proscrite.
Les noquets peuvent être apparents ou non.
Le tasseau de 40 peut être remplacé par une planche de rive fixée sur le chevron de rive et faisant sur le lattis une saillie de 40 mm au minimum.
L'ouvrage peut être réalisé à deux bandes métalliques (voir paragraphe 5.1.3.1.3.2) ou à trois bandes métalliques (voir paragraphe 5.1.3.1.3.3).
 : Couverture en ardoises en fibres-ciment/NF DTU 40.13 P1-1 (décembre 2009)/image/fig_ACFG_1_16.png)
Figure 16 Rive latérale droite métallique
5.1.3.5 Rive biaise que suit l'eau (90° < α ≤ 135°)
5.1.3.5.1 Rive en ardoises (Figure 17)
Les ardoises d'extrémité de chaque rang sont taillées suivant la ligne de rive ; elles sont épaulées en tête et dans le bas côté rive. Elles sont posées en débordement de 50 mm maximum sur la ligne de rive.
 : Couverture en ardoises en fibres-ciment/NF DTU 40.13 P1-1 (décembre 2009)/image/fig_ACFG_1_17.png)
Figure 17 Rive biaise en ardoises
5.1.3.5.2 Rive métallique
Cette solution est limitée aux longueurs de rive n'excédant pas 2 m.
L'exécution est semblable à celle de la rive droite métallique, sous réserve que les noquets soient biais et que les ardoises de rive soient taillées biaises suivant la ligne de rive (voir paragraphe 5.1.3.4.3).
Le tasseau peut être remplacé par une planche de rive dans les mêmes conditions que celles du paragraphe 5.1.3.4.3.
5.1.3.6 Rive biaise qui reçoit l'eau (135° < α < 180°)
5.1.3.6.1 Rive en ardoises (Figure 18)
Les ardoises d'extrémité de chaque rang doivent être taillées suivant la ligne de rive, posées en débordement de 50 mm maximum sur la ligne de rive.
Elles sont légèrement épaulées en tête. Une latte de redressement parallèle à la rive doit être clouée sur le support.
Si l'ardoise d'extrémité est trop petite ou trop pointue pour être fixée avec deux clous, elle est remplacée par une ardoise plus large taillée dans les mêmes conditions, la compensation en largeur étant opérée sur la ou les ardoises suivantes.
L'étanchéité est obtenue par un rang de doublis dont la hauteur est au moins égale à un recouvrement.
 : Couverture en ardoises en fibres-ciment/NF DTU 40.13 P1-1 (décembre 2009)/image/fig_ACFG_1_18.png)
Figure 18 Rive biaise en ardoise
5.1.3.6.2 Rive métallique
Cette partie d'ouvrage est à traiter comme un larmier (voir paragraphe 5.1.2.2.2) ou un chêneau (voir DTU 40.5).
5.1.4 Faîtages
5.1.4.1 Faîtage en ardoises
5.1.4.1.1 Faîtage à lignolet (Figure 19)
Le lignolet est constitué par le débordement de 50 mm des ardoises du versant exposé au vent de pluie dominant sur les ardoises du versant sous le vent.
 : Couverture en ardoises en fibres-ciment/NF DTU 40.13 P1-1 (décembre 2009)/image/fig_ACFG_1_19.png)
Figure 19 Faîtage à lignolet
Cet ouvrage ne peut être exécuté qu'en zone 1 situation protégée.
La partie en tête du versant exposé au vent de pluie est traitée comme une rive de tête en ardoise (voir paragraphe 5.1.3.1.1).
La partie en tête du versant sous le vent est traitée comme une rive de tête en ardoise, mais sans débordement du rang de doublage, ni du dernier rang ; les ardoises de ces deux rangs viennent buter sous les ardoises du lignolet.
5.1.4.1.2 Faîtage en ardoises de forme trapézoïdale (Figure 20)
Ce type est réalisé à l'aide d'ardoises de forme trapézoïdale découpées dans des ardoises et de noquets façonnés en zinc.
Les ardoises sont fixées sur des chanlattes jointives au faîtage, à l'aide de deux clous. Le recouvrement entre ardoises est de 60 mm. Les noquets sont dissimulés sous chaque lit d'ardoise et fixés par un clou sur chaque chanlatte.
 : Couverture en ardoises en fibres-ciment/NF DTU 40.13 P1-1 (décembre 2009)/image/fig_ACFG_1_20.png)
Figure 20 Faîtage en ardoises de forme trapézoïdale
5.1.4.2 Faîtage avec pièces en fibres-ciment
5.1.4.2.1 Faîtières « demi-rondes » (Figure 21)
Les conditions de pose sont les suivantes :
la pente du versant doit être supérieure à 70 % ;
sur chaque versant, le dernier rang d'ardoises doit être complété par un rang de doublage ;
les faîtières se posent par recouvrement en sens contraire du vent de pluie et doivent être fixées sur la panne faîtière à l'aide de crochets.
 : Couverture en ardoises en fibres-ciment/NF DTU 40.13 P1-1 (décembre 2009)/image/fig_ACFG_1_21.png)
Figure 21 Faîtage demi-ronde en fibres-ciment
5.1.4.2.2 Faîtières à bords plans (Figure 22)
Les faîtières angulaires doivent avoir une largeur d'aile d'au moins 200 mm. L'angularité de ces faîtières doit être adaptée à l'angularité des deux versants.
Elles se posent par recouvrement en sens inverse des vents de pluie dominants.
Il existe des faîtières à bords plans formant sortie d'air pour des pentes supérieures à 40 % et dont la section de ventilation, les limites de pente et les dispositifs d'étanchéité sont précisés par le fabricant.
 : Couverture en ardoises en fibres-ciment/NF DTU 40.13 P1-1 (décembre 2009)/image/fig_ACFG_1_22.png)
Figure 22 Faîtières à bords plans en fibres-ciment
5.1.4.3 Faîtage en terre cuite au mortier
Le dernier rang d'ardoises est complété par un rang de doublage ou rang de rencontre.
Le faîtage en terre cuite est à réaliser conformément aux spécifications de la NF DTU 40.21 P1 paragraphe 4.4.3.
Les abouts de faîtières sur pignons sont occultés (par exemple par un calfeutrement au mortier).
Les mortiers employés sont des mortiers bâtards ou des mortiers de chaux ou de ciment à maçonner.
5.1.4.4 Faîtage métallique
Sur chaque versant, le dernier rang d'ardoises est complété par un rang de doublage.
Les faîtages métalliques peuvent être réalisés à l'aide de 1, 3 ou 5 bandes.
5.1.4.4.1 Faîtage à une bande métallique
La bande métallique est façonnée à un pli et deux pinces (simples ou à biseau) ou à un pli et deux ourlets rechassés.
Elle est fixée à l'aide de pattes clouées au recouvrement et rabattues sur l'ourlet ou la pince, à raison de 2,5 pattes au mètre minimum.
Les bandes métalliques recouvrent le dernier rang d'ardoises de la valeur d'un recouvrement.
 : Couverture en ardoises en fibres-ciment/NF DTU 40.13 P1-1 (décembre 2009)/image/fig_ACFG_1_23.png)
Figure 23 Faîtage métallique à une bande
5.1.4.4.2 Faîtage à trois bandes métalliques
Le faîtage est composé de deux bandes d'astragale comportant un relevé de tête de 75 mm de hauteur et d'un couvre-joint posé sur un tasseau de 80 mm.
Les bandes d'astragale recouvrent le dernier rang d'ardoises de la valeur d'un recouvrement.
Le couvre-joint et les bandes d'astragales sont posés avec jonctions décalées en quinconce.
On peut se référer à la NF DTU 40.41 pour la fixation des bandes métalliques.
5.1.4.4.3 Faîtage à cinq bandes métalliques
Le faîtage à cinq bandes est composé d'un faîtage à trois bandes et de deux bandes de filet en plomb qui recouvrent le dernier rang d'ardoises de la valeur d'un recouvrement.
5.1.5 Arêtiers
5.1.5.1 Arêtiers en ardoises
5.1.5.1.1 Arêtiers en ardoises biaises (Figure 24)
Cet ouvrage ne peut être exécuté que lorsque l'angle formé par la ligne d'arêtier avec la ligne de niveau, pour un quelconque des versants, est supérieur à 35°.
Les conditions d'exécution des arêtiers en ardoises biaises sont analogues à celles des rives biaises (voir paragraphes 5.1.3.2.1, 5.1.3.3.1, 5.1.3.5.1 et 5.1.3.6.1).
Les arêtières de chaque versant se croisent alternativement d'un rang sur l'autre en changeant de versant.
 : Couverture en ardoises en fibres-ciment/NF DTU 40.13 P1-1 (décembre 2009)/image/fig_ACFG_1_24.png)
Figure 24 Arêtier en ardoises biaises
5.1.5.1.2 Arêtier en ardoises biaises avec noquets métalliques
Cet ouvrage ne peut être exécuté que pour des arêtiers de versants à pente sensiblement égale et à rangs consécutifs.
À chaque rang, une garniture métallique pliée (noquet) suivant la ligne d'arêtier est posée en doublage sous chaque arêtière.
Les noquets ne sont pas destinés à rester apparents.
5.1.5.1.3 Arêtier en ardoises de forme trapézoïdale (Figure 25)
L'exécution de cet arêtier est identique à ce qui est prévu au paragraphe 5.1.4.1.2.
 : Couverture en ardoises en fibres-ciment/NF DTU 40.13 P1-1 (décembre 2009)/image/fig_ACFG_1_25.png)
Figure 25 Arêtier en ardoises de forme trapézoïdale
5.1.5.2 Arêtier avec pièces en fibres-ciment
Les pièces sont utilisables :
faîtières « demi-ronde », pour versants à pente ≥ 70 % ;
faîtières à bords plans, pour versants à pente ≥ 60 %.
5.1.5.2.1 Arêtier en faîtières dites « demi-ronde » (Figure 26)
Les faîtières sont posées sur un tasseau de 30 mm de largeur, le côté évasé dirigé vers l'égout.
 : Couverture en ardoises en fibres-ciment/NF DTU 40.13 P1-1 (décembre 2009)/image/fig_ACFG_1_26.png)
Figure 26 Arêtier en faîtières demi-ronde
5.1.5.2.2 Arêtier en faîtières à bords plans (Figure 27)
Les faîtières angulaires sont posées comme en faîtage (voir paragraphe 5.1.4.2.2), l'emboîtement dirigé vers l'égout.
 : Couverture en ardoises en fibres-ciment/NF DTU 40.13 P1-1 (décembre 2009)/image/fig_ACFG_1_27.png)
Figure 27 Arêtier en faîtières à bords plans
5.1.5.3 Arêtier métallique
Les arêtiers métalliques peuvent être réalisés à l'aide d'une, trois ou cinq bandes conformément aux paragraphes 5.1.4.4.1, 5.1.4.4.2 et 5.1.4.4.3.
5.1.6 Noues
La noue est généralement constituée par une feuille métallique posée sur voligeage et dont le développement et le profil sont fonctions de sa pente et de la quantité d'eau à évacuer.
Par suite de sa position, la noue se trouve placée dans des conditions particulièrement défavorables pour les raisons suivantes :
sa pente est inférieure à celle du rampant de plus faible pente ;
étant placée à l'intersection de deux versants, la noue reçoit une grande quantité d'eau.
En conséquence, il convient que son établissement fasse l'objet de soins particuliers.
Lorsque les pentes des deux versants sont très différentes, il convient notamment de prendre toutes dispositions pour éviter les infiltrations d'eau sur le versant dont la pente est la plus faible. À cet effet, on peut se référer aux NF DTU 40.41 ou NF DTU 40.44.
Les noues métalliques sont exécutées conformément aux prescriptions correspondantes des NF DTU 40.41 et NF DTU 40.44.
Suivant le profil adopté, on exécutera une pince de 15 mm à 40 mm ou un relevé contre une fourrure en bois établie aux dimensions appropriées (noues encaissées).
Il est rappelé que les noues encaissées sont obligatoires pour une pente de noue inférieure à 15 %.
Les ardoises dépassent la rive de la noue de 60 mm, mesure prise perpendiculairement à l'axe de la noue (Figure 28).
 : Couverture en ardoises en fibres-ciment/NF DTU 40.13 P1-1 (décembre 2009)/image/fig_ACFG_1_28.png)
Figure 28 Recouvrement des ardoises sur la noue
Dans le cas de noue encaissée, le débordement des ardoises peut être réduit à 50 mm tout en laissant, entre les ardoises d'extrémité de chaque versant, un intervalle d'au moins 70 mm.
5.1.7 Brisures
Une brisure est l'intersection de deux plans de couverture de pentes différentes.
Les prescriptions du support sont celles des supports des rives d'égout pour le plan supérieur et celles des rives de tête pour le plan inférieur.
5.1.7.1 Brisure à angle rentrant
5.1.7.1.1 L'angle des deux plans de couverture est supérieur ou égal à 150° (Figure 29)
La couverture en ardoises est exécutée comme s'il n'y avait qu'un seul plan.
 : Couverture en ardoises en fibres-ciment/NF DTU 40.13 P1-1 (décembre 2009)/image/fig_ACFG_1_29.png)
Figure 29 Brise à angle rentrant supérieur ou égal à 150°
5.1.7.1.2 L'angle des deux plans est inférieur à 150° (Figure 30)
Le plan inférieur est terminé par un rang de rencontre (rive de tête sans débordement, voir paragraphe 5.1.3.1.1).
De plus, une bande métallique est disposée pour recouvrir le rang de rencontre de la valeur d'un recouvrement, le relief de cette bande est égal au recouvrement de l'ardoise du plan supérieur.
Le recouvrement latéral entre bandes est de 10 cm.
Le départ de la couverture du plan supérieur se fait par un égout dont la base du doublis est au contact de la partie inclinée de la bande métallique.
 : Couverture en ardoises en fibres-ciment/NF DTU 40.13 P1-1 (décembre 2009)/image/fig_ACFG_1_30.png)
Figure 30 Brisure à angle rentrant inférieur à 150°
5.1.7.2 Brisure à angle saillant (ou ligne de bris)
Cet ouvrage est caractéristique de la couverture d'un comble « à la Mansart ».
5.1.7.2.1 Brisure en ardoise (Figure 31)
Le plan inférieur ou brisis se termine par un rang de rencontre (rive de tête sans débordement, voir paragraphe 5.1.3.1.1).
Le départ de la couverture du plan supérieur se fait par un égout (voir paragraphe 5.1.2.1).
 : Couverture en ardoises en fibres-ciment/NF DTU 40.13 P1-1 (décembre 2009)/image/fig_ACFG_1_31.png)
Figure 31 Brisure saillante en ardoises
5.1.7.2.2 Brisure métallique (Figure 32)
Elle peut être réalisée à l'aide de 1, 2 ou 3 bandes. Dans ce dernier cas, la bande de battellement peut être remplacée par un membron.
Le recouvrement latéral entre bande est de 10 cm.
 : Couverture en ardoises en fibres-ciment/NF DTU 40.13 P1-1 (décembre 2009)/image/fig_ACFG_1_32.png)
Figure 32 Brisure saillante métallique
5.1.8 Pénétrations
5.1.8.1 Pénétrations continues
Le raccordement de la couverture au droit d'une pénétration continue se fait différemment selon que l'eau fuit la ligne de raccordement ou la rencontre.
5.1.8.1.1 L'eau fuit la ligne de raccordement
Les ardoises d'extrémité de chaque rang sont recouvertes d'une bande métallique ou bavette de la valeur du recouvrement. La bande, dont le relief est de 90 mm minimum, est fixée en tête par des pattes ou agrafes dans la paroi verticale et réparties tous les 40 cm. Les bandes sont posées par éléments de longueur inférieure ou égale à 2 m et le recouvrement entre bandes est de 10 cm.
Sur les parois maçonnées, en recouvrement de cette bande, est posée une bande de solin métallique, engravée (Figure 33) ou à biseau en applique (Figure 34), clouée en tête et retenue par des pattes soudées, cette bande reçoit un solin en mortier de liant hydraulique.
Ces bandes de solin peuvent être remplacées par une bande à rabattre ou une bande de solin porte-mastic.
Pour la réalisation de la bande de solin, la bande à rabattre ou la bande de solin porte-mastic, les prescriptions de la NF DTU 40.41 paragraphe 5.5.2 doivent être respectées.
 : Couverture en ardoises en fibres-ciment/NF DTU 40.13 P1-1 (décembre 2009)/image/fig_ACFG_1_33.png)
Figure 33 Bande de solin de tête engravée
5.1.8.1.2 La ligne de raccordement reçoit l'eau
Si l'angle de la ligne de raccordement avec la ligne de niveau du versant est compris entre 91° et 135°, la ligne de raccordement est suivie par l'eau.
Le support est jointif et posé parallèlement au lattis (Figure 34).
 : Couverture en ardoises en fibres-ciment/NF DTU 40.13 P1-1 (décembre 2009)/image/fig_ACFG_1_34.png)
Figure 34 Pénétration traitée en bande de solin à biseau en applique
L'exécution de la couverture est identique à celle décrite au paragraphe 5.1.3.5.2 (rive biaise métallique que suit l'eau) mais le relief des noquets biais est porté à 90 mm.
En recouvrement des reliefs des noquets est posée une bande de solin ou une bande à rabattre dans les mêmes conditions que précédemment (paragraphe 5.1.8.1.1).
Si l'angle de ligne de raccordement avec la ligne de niveau dépasse 135°, la couverture comporte un égout sur l'ardoise et une partie métallique formant chêneau dont le développé est fonction du débit d'eau à assurer (Figure 35).
 : Couverture en ardoises en fibres-ciment/NF DTU 40.13 P1-1 (décembre 2009)/image/fig_ACFG_1_35.png)
Figure 35 Pénétration traitée en égout et chéneau
5.1.8.2 Pénétrations discontinues
5.1.8.2.1 Souches, châssis
Ces ouvrages sont traités à l'aide d'éléments métalliques et de noquets se raccordant aux faces périphériques des pénétrations (Figure 36).
Les faces de coté et la face aval sont traitées comme si, sur chacune des faces, la pénétration était continue (5.1.8.1.1 et 5.1.8.1.2). La bande de recouvrement en aval est retournée sur les angles de la largeur d'une demi ardoise et d'une longueur égale à un recouvrement pour former noquet.
L'ardoise entière recouvrant ce noquet est taillée à 45° sur la moitié de son chef de base.
Les angles et les goussets en retour sont soudés.
La face amont est traitée en égout pour la couverture en ardoise et en besace ou en chéneau pour le raccordement métallique.
Pour les souches, la hauteur du relief du derrière indépendant est de 90 mm minimum.
Le présent document ne traite pas des fenêtres de toit, lesquelles font l'objet d'Avis Techniques.
 : Couverture en ardoises en fibres-ciment/NF DTU 40.13 P1-1 (décembre 2009)/image/fig_ACFG_1_36.png)
Figure 36 Exemple de traitement d'une souche
5.1.8.2.2 Lucarnes et outeaux
Ces ouvrages sont traités en ardoises. Ils doivent respecter toutes les règles précédentes liées à leur format (pente, recouvrement, accident de couverture).
5.1.8.2.3 Sortie de ventilation
Il existe des éléments, préfabriqués permettant simultanément la réalisation du raccord et de la sortie de ventilation.
Les ardoises sont remplacées par une pièce métallique ou alaise percée et munie d'une douille (ou fourreau cylindrique ou tronconique) pour laisser le passage du tuyau (Figure. 37). Le relevé de la pièce métallique est de 90 mm minimum.
 : Couverture en ardoises en fibres-ciment/NF DTU 40.13 P1-1 (décembre 2009)/image/fig_ACFG_1_37.png)
Figure 37 Sortie de ventilation
5.1.8.2.4 Tuyaux (ventilation et chutes)
Les ardoises sont remplacées par une pièce métallique ou alaise percée et munie d'une douille (ou fourreau) cylindrique ou tronconique pour laisser le passage du tuyau (Figure 38).
 : Couverture en ardoises en fibres-ciment/NF DTU 40.13 P1-1 (décembre 2009)/image/fig_ACFG_1_38.png)
Figure 38 Sortie de tuyau
5.2 Exécution des ouvrages de couverture en modèles carrés posés en diagonale (dits losangés)
5.2.1 Prescriptions générales
5.2.1.1 Limitation d'emploi
Ce système de couverture ne se prête pas à la réalisation de formes de toitures différentes du rectangle ou du trapèze ou présentant de nombreuses pénétrations discontinues.
Il n'assure pas l'étanchéité à la neige poudreuse et à la poussière. Dans le cas ou telle protection est recherchée, il faut mettre en place un écran de sous-toiture (paragraphe 4.4.1).
Les Tableaux 10 et 11 précisent les limites de hauteurs pour lesquelles les dispositions concernant la pose en diagonale de modèles carrés sont applicables, en fonction du mode de fixation de l'ardoise et de la zone de vent par référence à la carte des règles NV 65 modifiées.
 : Couverture en ardoises en fibres-ciment/NF DTU 40.13 P1-1 (décembre 2009)/image/tab_ACFG_1_10.png)
Tableau 10 Limitation de hauteur (m) des bâtiments fermés couverts en ardoises en fibres-ciment — Pose en losange
Tableau 11 Limitation de hauteur (m) des bâtiments ouverts couverts en ardoises en fibres-ciment — Pose en losange
5.2.1.2 Pente minimale — recouvrement
La pose est admise pour les versants dont la projection horizontale est inférieure ou égale à 8 m.
Le recouvrement est la plus petite distance séparant les rives parallèles des ardoises de deux rangs consécutifs et mesurée perpendiculairement à ces rives.
 : Couverture en ardoises en fibres-ciment/NF DTU 40.13 P1-1 (décembre 2009)/image/fig_ACFG_1_39.png)
Figure 39 Couverture en modèles carrés posés en diagonale — Exemple de pose à deux clous + un crochet
Les conditions de pose sont indiquées dans le Tableau 12, selon la zone climatique par référence à l'Annexe B.
 : Couverture en ardoises en fibres-ciment/NF DTU 40.13 P1-1 (décembre 2009)/image/tab_ACFG_1_12.png)
Tableau 12 Conditions de pose des modèles carrés posés en diagonale selon la zone climatique
L'emploi de ce type de couverture en zone climatique III, situation exposée n'est pas visée par le présent document.
Les ardoises doivent être posées de façon que la diagonale de symétrie soit parallèle à la ligne de plus grande pente.
5.2.2 Egouts
5.2.2.1 Egouts en ardoises
Le support présente en partie basse un liteau de basculement dont la surépaisseur est au moins égal à l'épaisseur de l'ardoise.
Les ardoises de départ sont coupées selon la diagonale horizontale pour former l'égout et placées en débordement de 0,05 m sur le support. Les ardoises du dessus sont recoupées sur la pointe ou sur le pan bas pour s'aligner sur l'égout.
Les ardoises d'égout sont toujours fixées à deux clous en plus du crochet (Figure 40).
 : Couverture en ardoises en fibres-ciment/NF DTU 40.13 P1-1 (décembre 2009)/image/fig_ACFG_1_40.png)
Figure 40 Exemple de fixation des ardoises d'égout (pose à deux clous + un crochet)
5.2.2.2 Egouts avec bande métallique
Les prescriptions sont celles décrites au paragraphe 5.1.2.2.
5.2.3 Rives
5.2.3.1 Rive de tête
5.2.3.1.1 Rive de tête en ardoise
L'exécution de cet ouvrage n'est pas admise avec la pose losangée.
5.2.3.1.2 Rive de tête métallique
Sous le dernier rang d'ardoises, le support est jointif.
Le dernier rang d'ardoises entières est fixé à l'aide de deux clous par ardoise et doit être recouvert par un rang de demi-ardoises de même forme qu'à l'égout.
La garniture métallique est traitée comme au paragraphe 5.1.3.1.3.
5.2.3.2 Rives latérales
5.2.3.2.1 Rive latérale droite en ardoise
La rive droite est constituée d'ardoises entières et d'ardoises taillées suivant la ligne de plus grande pente. Ces deux lignes d'ardoises doivent être fixées à deux clous.
Les ardoises débordent le mur ou le chevron de rive de 50 mm maximum.
5.2.3.2.2 Rive latérale métallique
La rive est constituée par un tasseau de 40 mm cloué sur le lattis avec un couvre-joint métallique, du côté extérieur par une bande de rive et, en recouvrement sur les ardoises, par une bande à pince et biseau avec relief le long du tasseau. La valeur du recouvrement est d'au moins 70 mm. Le tasseau de 40 peut être remplacé par une planche de rive fixée sur le chevron de rive et faisant sur le lattis une saillie de 40 mm.
Le recouvrement latéral entre bandes métalliques est de 10 cm.
5.2.4 Faîtage
Le faîtage est réalisé :
soit avec les pièces en fibres-ciment prévues à cet effet ;
soit avec 1, 3 ou 5 bandes métalliques.
Le dernier rang d'ardoises entières est fixé à deux clous et doit être recouvert par un rang de demi-ardoises de même forme qu'à l'égout.
5.2.5 Arêtier
Les ardoises sont posées normalement et sont taillées en tranchis. L'arêtier peut être exécuté en ardoises par un bardelis ou à l'aide de bandes métalliques (arêtier à 1, 3 ou 5 bandes).
L'arêtier peut également être réalisé à l'aide d'ardoises de forme trapézoïdale découpées dans des ardoises et de noquets façonnés en zinc. Les ardoises trapézoïdales sont fixées comme indiqué au paragraphe 5.1.4.1.2.
5.2.6 Noue
Elle est réalisée à l'aide de pièces métalliques, les prescriptions sont celles du paragraphe 5.1.6.
5.2.7 Brisures
Elles se traitent de façon similaire à la pose à pureau entier (voir paragraphe 5.1.7).
5.2.8 Pénétrations
Elles se traitent de façon similaire aux prescriptions du paragraphe 5.1.8.
5.3 Exécution des ouvrages de couverture à claire-voie ordinaire
5.3.1 Prescriptions générales
5.3.1.1 Limitation d'emploi
Ce système de couverture ne peut être exécuté que pour les pentes indiquées au Tableau 15 et pour les situations protégées ou normales définies en Annexe B.
Ce système de pose peut être employé en essentage dans toutes zones de concomitance vent-pluie.
Ce système de couverture ne se prête pas à la réalisation de formes de toiture différentes du rectangle ou du trapèze ou présentant de nombreuses pénétrations discontinues.
Ce système de couverture n'assure pas l'étanchéité à la neige poudreuse et à la poussière.
Dans le cas où une telle protection est recherchée, il faut mettre en place un écran souple (voir paragraphe 4.4.1).
Les Tableaux 13 et 14 précisent les limites de hauteurs pour lesquelles les dispositions concernant la pose à claire-voie sont applicables, en fonction du mode de fixation de l'ardoise et de la zone de vent par référence à la carte des règles NV 65 modifiées.
 : Couverture en ardoises en fibres-ciment/NF DTU 40.13 P1-1 (décembre 2009)/image/tab_ACFG_1_13.png)
Tableau 13 Limitation de hauteur (m) des bâtiments fermés couverts en ardoises en fibres-ciment — Pose à claire-voie
Tableau 14 Limitation de hauteur (m) des bâtiments ouverts couverts en ardoises en fibres-ciment — Pose à claire-voie
5.3.1.2 Supports
Le support est constitué par des liteaux ou voliges en bois, mis en place comme indiqué au paragraphe 4.2.1 pour la couverture à pureau entier.
5.3.1.3 Recouvrement et pentes
5.3.1.3.1 Recouvrement longitudinal
Le Tableau 15 ci-après donne les valeurs du recouvrement longitudinal pour une projection horizontale du versant inférieure ou égale à 5,50 m.
 : Couverture en ardoises en fibres-ciment/NF DTU 40.13 P1-1 (décembre 2009)/image/tab_ACFG_1_15.png)
Tableau 15 Recouvrement longitudinal pour les couvertures à claire-voie ordinaire
Les zones sont définies en Annexe B.
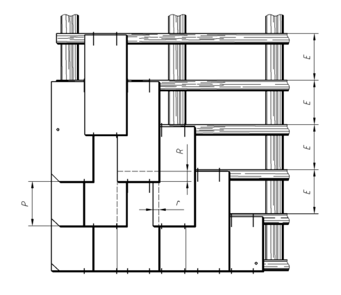
Le recouvrement longitudinal est défini par la Figure 41.
 : Couverture en ardoises en fibres-ciment/NF DTU 40.13 P1-1 (décembre 2009)/image/fig_ACFG_1_41.png)
Figure 41 Recouvrement longitudinal (R) et latéral (r)
5.3.1.3.2 Recouvrement latéral
Dans la pose à claire-voie ordinaire, le recouvrement latéral des ardoises est d'au moins 70 mm.
5.3.1.4 Format des ardoises
Les modèles d'ardoises doivent être rectangulaires et avoir des dimensions au moins égales à 400 mm × 240 mm.
Les ardoises ne doivent pas être épaulées ni arrondies.
5.3.1.5 Pose et fixation des ardoises en partie courante
Les ardoises sont fixées par deux crochets placés le long des chefs de côtés des ardoises du rang inférieur.
5.3.2 Exécution des divers ouvrages : égouts, rives, faîtages, arêtiers, noues et pénétrations
Ces ouvrages sont traités de façon analogue à ceux de la couverture à pureau entier.