7 Ouvrages particuliers
7.1 Généralités - Nomenclature
Les ouvrages particuliers comprennent :
les reliefs ( voir paragraphe 7.2),
les rives sans acrotères ( voir paragraphe 7.3),
les joints de gros oeuvre ( voir paragraphe 7.4),
les dispositifs de collecte et d'évacuation des eaux pluviales (chéneaux - noues - caniveaux, entrées d'eaux pluviales ( voir paragraphe 7.5),
les ouvrages divers ( voir paragraphe 7.6).
7.2 Reliefs
7.2.1 Définition
Un relief est un ouvrage émergent sur lequel l'étanchéité est relevée, ce relevé pouvant être exécuté sur tout ou partie de la hauteur du relief.
7.2.2 Nomenclature
Les reliefs comprennent :
A)
Les acrotères ( voir paragraphe 7.2.4) ou murets situés en bordure de la toiture, généralement dans le prolongement des murs de façade.
On distingue :
-
les acrotères bas, dont la hauteur au-dessus de la protection de l'étanchéité ne dépasse pas 300 mm ( figure 2),
 : Gros oeuvre en maçonnerie des toitures destinées à recevoir un revêtement d'étanchéité/DTU 20.12 (NF P10-203-1) (septembre 1993)/image/fig_AGC_1_200.png)
Figure 2 Acrotères bas
les acrotères hauts dont la hauteur au-dessus de la protection de l'étanchéité excède 300 mm.
Les acrotères bas ou hauts sont réalisés en oeuvre ou préfabriqués.
B)
Les costières ( voir paragraphe 7.2.5) ou murets situés :
C)
Les souches et murs de locaux divers ( voir paragraphe 7.2.6).
D)
Les seuils ( voir paragraphe 7.2.7).
E)
Les canalisations et massifs ( voir paragraphe 7.2.8).
F)
Les reliefs divers ( voir paragraphe 7.2.9).
7.2.3 Dispositions communes
7.2.3.1 Implantation - Dimensionnement
Une distance minimale entre ouvrages émergents voisins est à respecter. Cette distance « d » est fonction de la dimension en vis-à-vis « l », ces deux grandeurs étant définies ci-après ( figures 5 et 6).
 : Gros oeuvre en maçonnerie des toitures destinées à recevoir un revêtement d'étanchéité/DTU 20.12 (NF P10-203-1) (septembre 1993)/image/fig_AGC_1_201.png)
Figure 5 Implantation des ouvrages particuliers
 : Gros oeuvre en maçonnerie des toitures destinées à recevoir un revêtement d'étanchéité/DTU 20.12 (NF P10-203-1) (septembre 1993)/image/fig_AGC_1_202.png)
Figure 6 Implantation des ouvrages particuliers
 : Gros oeuvre en maçonnerie des toitures destinées à recevoir un revêtement d'étanchéité/DTU 20.12 (NF P10-203-1) (septembre 1993)/image/tab_AGC_1_8.png)
Lorsque cette distance minimale ne peut être respectée, des dispositions particulières sont envisageables (ouvrages en maçonnerie solidarisant plusieurs émergences).
Les reliefs linéaires filants perpendiculairement à la pente, autres que ceux situés en faîtage, doivent permettre l'évacuation des eaux pluviales.
Ils doivent être traités comme des noues de rive du point de vue de leur hauteur.
7.2.3.2 Principes de réalisation des reliefs
7.2.3.2.1 Nature
Ils sont réalisés en béton et sont considérés avec la classe d'exposition XC4 au sens de la norme NF EN 206-1.
Le parement en béton correspond à la définition du parement courant excluant tout autre type de parement, selon la NF P 18-201 (référence DTU 21).
L'épiderme ne doit pas être lisse. Par exemple pour les coffrages métalliques, bakélisés, ou toutes autres surface lisse ou à effet miroir, des dispositions doivent être prises sur la hauteur du relevé avec des moyens tels que : matrice ou négatif rugueux, traitement du support sitôt le décoffrage réalisé,...
Dans certains cas précisés ci-après, on peut utiliser également des costières métalliques fixées mécaniquement au gros oeuvre :
costière de lanterneaux,
costière contre acrotère incorporé à un panneau de façade indépendant de la toiture ( voir paragraphe 7.2.4.2.2 b),
costière de joint de dilatation situé en pied de bâtiment, lorsque la façade en élévation est constituée d'un bardage démontable étanche et descendant jusqu'au niveau de la protection du revêtement d'étanchéité de la toiture.
Ces types de costières métalliques ne sont pas traités dans la présente norme.
Les reliefs mixtes comportant du béton et de la maçonnerie ne sont admis que dans les conditions définies au paragraphe 7.2.4.1.4.
Lorsque les DPM le prévoient, les reliefs peuvent être revêtus de panneaux isolants.
7.2.3.2.2 Stabilité des reliefs
Les reliefs sont généralement solidaires de l'élément porteur.
Dans la détermination des dispositions relatives à la stabilité des reliefs, il doit être tenu compte de l'accessibilité éventuelle de la toiture.
Les dispositions constructives de la toiture doivent permettre de satisfaire aux exigences réglementaires concernant la protection contre les chutes du personnel amené à travailler ou à circuler sur la toiture.
Ces exigences figurent dans le décret 65-48 du 8 janvier 1965 concernant l'exécution des dispositions du Livre II du Code du travail (titre II - Hygiène et Sécurité des travailleurs).
7.2.3.2.3 Forme des reliefs
Les reliefs sont généralement verticaux. On distingue :
les reliefs revêtus d'une façon continue par l'étanchéité, y compris leur face supérieure ( figure 19),
les reliefs surmontés par un couronnement empêchant le passage de l'eau,
les reliefs comportant à la partie supérieure du relevé un ouvrage qui empêche les eaux de ruissellement ou de rejaillissement de s'introduire derrière les relevés d'étanchéité ( figure 7 à 18).
Les différents dispositifs répondant à cette dernière disposition sont :
7.2.3.2.3.1
Le retrait en partie basse du relief avec becquet formant larmier ( figure 7)
 : Gros oeuvre en maçonnerie des toitures destinées à recevoir un revêtement d'étanchéité/DTU 20.12 (NF P10-203-1) (septembre 1993)/image/fig_AGC_1_203.png)
Figure 7 Retrait du relief
Les dimensions minimales de ce becquet sont données par le tableau suivant en fonction des différents cas de revêtements d'étanchéité des relevés et de leurs protections.
 : Gros oeuvre en maçonnerie des toitures destinées à recevoir un revêtement d'étanchéité/DTU 20.12 (NF P10-203-1) (septembre 1993)/image/tab_AGC_1_1.png)
Tableau 1 Dimensions minimales du becquet
7.2.3.2.3.2
Le bandeau saillant à larmier en béton armé ( figures 8, 9 et 10)
 : Gros oeuvre en maçonnerie des toitures destinées à recevoir un revêtement d'étanchéité/DTU 20.12 (NF P10-203-1) (septembre 1993)/image/fig_AGC_1_204.png)
Figure 8 Bandeau saillant à larmier
 : Gros oeuvre en maçonnerie des toitures destinées à recevoir un revêtement d'étanchéité/DTU 20.12 (NF P10-203-1) (septembre 1993)/image/fig_AGC_1_205.png)
Figure 9 Bandeau saillant à larmier
 : Gros oeuvre en maçonnerie des toitures destinées à recevoir un revêtement d'étanchéité/DTU 20.12 (NF P10-203-1) (septembre 1993)/image/fig_AGC_1_206.png)
Figure 10 Bandeau saillant à larmier
Différentes formes ou profils peuvent être utilisés.
Les cotes « d » et « h » du tableau précédent restent applicables.
7.2.3.2.3.3 Variante - Bandeau saillant préfabriqué
Ces systèmes doivent bénéficier d'un Avis Technique 2 favorable pour cet emploi.
Ou son équivalent dans les conditions indiquées dans l'avant propos.
7.2.3.2.3.4 L'engravure (figure 11)
 : Gros oeuvre en maçonnerie des toitures destinées à recevoir un revêtement d'étanchéité/DTU 20.12 (NF P10-203-1) (septembre 1993)/image/fig_AGC_1_208.png)
Figure 11 Engravure
A réserver dans le relief en béton pour recevoir la partie supérieure du relevé d'étanchéité.
Les cotes minimales à réserver figurent sur le dessin.
7.2.3.2.3.5 Bande de solin métallique
Il s'agit de systèmes spécifiques mis au point par les tenants de ces systèmes.
Ces systèmes doivent bénéficier d'un avis technique favorable pour cet emploi.
7.2.3.2.4 Hauteur des reliefs
A) Dispositions générales
La hauteur des reliefs doit permettre la réalisation d'un relevé d'étanchéité présentant une valeur H minimale, H étant la distance verticale comprise entre le dessus de la protection des parties courantes du revêtement d'étanchéité au voisinage du relief et le dispositif écartant les eaux de ruissellement.
La réservation totale H' à prévoir dans le gros oeuvre doit tenir compte ( figure 13) :
de la valeur h ( voir paragraphe 7.2.3.2.3.1),
de la valeur H définie ci-dessus et déterminée par les règles d'étanchéité,
du type de protection du revêtement d'étanchéité et de son épaisseur,
de l'épaisseur du revêtement d'étanchéité, de l'isolation thermique, du pare-vapeur,
de l'épaisseur de la forme de pente éventuelle,
de tous autres éléments (terre végétale, etc.).
 : Gros oeuvre en maçonnerie des toitures destinées à recevoir un revêtement d'étanchéité/DTU 20.12 (NF P10-203-1) (septembre 1993)/image/fig_AGC_2_210.png)
Figure 13 Hauteur des reliefs
B) Valeurs de « H »
Elles sont données dans le tableau suivant en fonction :
de la pente,
de l'accessibilité de la terrasse.
 : Gros oeuvre en maçonnerie des toitures destinées à recevoir un revêtement d'étanchéité/DTU 20.12 (NF P10-203-1) (septembre 1993)/image/tab_AGC_2_2.png)
Tableau 2 Valeurs de « H »
 : Gros oeuvre en maçonnerie des toitures destinées à recevoir un revêtement d'étanchéité/DTU 20.12 (NF P10-203-1) (septembre 1993)/image/tab_AGC_2_201.png)
Tableau 2 Valeurs de « H » (suite)
 : Gros oeuvre en maçonnerie des toitures destinées à recevoir un revêtement d'étanchéité/DTU 20.12 (NF P10-203-1) (septembre 1993)/image/fig_AGC_1_92.png)
Figure 14 Niveau fini des dalles au-dessus du haut des relevés
 : Gros oeuvre en maçonnerie des toitures destinées à recevoir un revêtement d'étanchéité/DTU 20.12 (NF P10-203-1) (septembre 1993)/image/fig_AGC_1_90.png)
Figure 15 Niveau fini des dalles au-dessous du haut des relevés, cas de caillebotis
 : Gros oeuvre en maçonnerie des toitures destinées à recevoir un revêtement d'étanchéité/DTU 20.12 (NF P10-203-1) (septembre 1993)/image/fig_AGC_1_91.png)
Figure 16 Niveau fini des dalles au-dessous du haut des relevés, cas de bardage étanche
 : Gros oeuvre en maçonnerie des toitures destinées à recevoir un revêtement d'étanchéité/DTU 20.12 (NF P10-203-1) (septembre 1993)/image/fig_AGC_1_89.png)
Figure 17 Niveau fini des dalles au-dessous du haut des relevés, cas général
 : Gros oeuvre en maçonnerie des toitures destinées à recevoir un revêtement d'étanchéité/DTU 20.12 (NF P10-203-1) (septembre 1993)/image/fig_AGC_1_88.png)
Figure 18 Terrasse-jardin - Hauteur du relief
C) Reliefs de faible hauteur revêtus d'un revêtement d'étanchéité ( figure 19)
 : Gros oeuvre en maçonnerie des toitures destinées à recevoir un revêtement d'étanchéité/DTU 20.12 (NF P10-203-1) (septembre 1993)/image/fig_AGC_1_211.png)
Figure 19 Relief revêtu par l'étanchéité
La hauteur H du relief peut être réduite à 50 mm :
si le revêtement d'étanchéité revêt d'une façon continue le relief,
si ce relief ne forme pas une noue de rive.
Cette disposition s'applique :
aux acrotères de faible hauteur,
et aux doubles costières de joint plat surélevé.
7.2.4 Acrotères
7.2.4.1 Acrotères réalisés en oeuvre
Ils sont solidaires de l'élément porteur.
7.2.4.1.1 Acrotères bas
Ils sont admis dans tous les cas : murs de façade en béton banché ou en maçonnerie d'éléments.
Ils sont obligatoirement en béton armé. Ils sont réalisés soit en débord avec la façade soit en alignement, Figure 20 bis avec le revêtement de la façade finie, avec obligation de réaliser un joint entre éléments de maçonnerie de nature différente (marquage du joint). L'assise du plancher et de l'acrotère en béton doit être réalisée sur un mortier dressé avec une bande de désolidarisation dans le cas de murs porteurs ou de remplissage maçonnés selon la XP P 10-202 (Référence DTU 20.1).
En cas de débord avec la façade la goutte d'eau doit répondre aux descriptions de la figure 20 ter.
Leur épaisseur minimale « b » est de 100 mm ( figure 20).
 : Gros oeuvre en maçonnerie des toitures destinées à recevoir un revêtement d'étanchéité/DTU 20.12 (NF P10-203-1) (septembre 1993)/image/fig_AGC_1_140.png)
Figure 20 Ferraillage des acrotères
 : Gros oeuvre en maçonnerie des toitures destinées à recevoir un revêtement d'étanchéité/DTU 20.12 (NF P10-203-1) (septembre 1993)/image/fig_AGC_1_141.png)
Figure 20 Ferraillage des acrotères
 : Gros oeuvre en maçonnerie des toitures destinées à recevoir un revêtement d'étanchéité/DTU 20.12 (NF P10-203-1) (septembre 1993)/image/fig_AGC_2_142.png)
Figure 20 bis Type d'acrotère sans débord
 : Gros oeuvre en maçonnerie des toitures destinées à recevoir un revêtement d'étanchéité/DTU 20.12 (NF P10-203-1) (septembre 1993)/image/fig_AGC_2_143.png)
Figure 20 ter Détail de la goutte d'eau sur acrotère avec débord
Ils doivent comporter une section d'armatures longitudinales correspondant aux dispositions suivantes :
Les armatures longitudinales sont obligatoirement des aciers à haute adhérence.
L'espacement maximal des armatures longitudinales est égal à la plus faible des deux valeurs suivantes :
250 mm,
2,5 b.
7.2.4.1.2 Acrotères hauts en béton armé
Les acrotères hauts sont réalisés sur toute leur hauteur en béton armé.
Ils ne sont admis :
que s'ils surmontent des murs de façade en béton banché ou à ossature en béton armé avec maçonnerie de remplissage,
-
ou s'ils sont isolés thermiquement sur leurs deux faces ( figures 21 et 22).
 : Gros oeuvre en maçonnerie des toitures destinées à recevoir un revêtement d'étanchéité/DTU 20.12 (NF P10-203-1) (septembre 1993)/image/fig_AGC_1_29.png)
Figure 21 Acrotères hauts
 : Gros oeuvre en maçonnerie des toitures destinées à recevoir un revêtement d'étanchéité/DTU 20.12 (NF P10-203-1) (septembre 1993)/image/fig_AGC_1_30.png)
Figure 22 Disposition interdite
Les acrotères hauts sont composés :
d'une partie basse continue dont le ferraillage est le même que celui des acrotères bas défini en 7.2.4.1.1, et
d'une partie supérieure au-dessus du bandeau fractionnée, dont les joints verticaux intéressent toute l'épaisseur. Le ferraillage de cette partie correspond aux dispositions suivantes ( figure 24).
L'espacement des joints verticaux ne peut dépasser (par référence à la norme NF P 10-202 (Référence DTU 20.1)) :
8 m dans les régions sèches ou à forte opposition de température,
12 m dans les régions humides ou tempérées.
Les joints transversaux doivent être calfeutrés sur tout leur développé par un mastic élastomère 1 re catégorie ( figure 23).
 : Gros oeuvre en maçonnerie des toitures destinées à recevoir un revêtement d'étanchéité/DTU 20.12 (NF P10-203-1) (septembre 1993)/image/fig_AGC_1_212.png)
Figure 23 Calfeutrement des joints d'acrotère
Section d'armatures dans la partie supérieure de l'acrotère ( figure 24) :
 : Gros oeuvre en maçonnerie des toitures destinées à recevoir un revêtement d'étanchéité/DTU 20.12 (NF P10-203-1) (septembre 1993)/image/fig_AGC_1_213.png)
Figure 24 Ferraillage des acrotères hauts
1 er cas
Espacement maximal des joints :
8 m en régions sèches,
12 m en régions humides et tempérées.
A ≥ 0,50 (S / 100) (Section d'armatures)
2 ème cas
Lorsque l'espacement entre deux joints transversaux consécutifs ne dépasse pas :
6 m dans les régions humides et tempérées,
4 m dans les régions sèches ou à forte opposition de température.
La section des armatures longitudinales de la partie située au-dessus de la coupure est au moins égale à 0,25 % de la section du béton.
De plus, pour éviter que les fissures ne se produisent dans le prolongement des joints transversaux, il faut prévoir, en fond de joint ( figure 24) et au voisinage de la coupure, des armatures dont la section est la même que celle qui est disposée dans l'élément coupé.
En outre pour les acrotères minces, il doit être prévu, au voisinage de l'extrémité supérieure de la pièce, une barre de plus gros diamètre.
7.2.4.1.3 Acrotères hauts en maçonnerie d'éléments
Ces systèmes doivent bénéficier d'un Avis Technique 3 favorable pour cet emploi.
Ou son équivalent dans les conditions indiquées dans l'avant propos.
7.2.4.1.4 Acrotères hauts mixtes
Ces acrotères ne peuvent pas être utilisés pour l'accrochage d'échafaudages volants de type pinces d'acrotère au sens de la NF EN 1808.
Ils sont limités aux terrasses inaccessibles.
A) Acrotères mixtes dans leur hauteur ( figure 25)
 : Gros oeuvre en maçonnerie des toitures destinées à recevoir un revêtement d'étanchéité/DTU 20.12 (NF P10-203-1) (septembre 1993)/image/fig_AGC_1_148.png)
Figure 25 Acrotère haut mixte dans la hauteur
Ces acrotères sont réalisés en partie basse en béton armé et pour la partie supérieure en maçonnerie d'éléments pleins.
Ils ne sont pas admis en situation d'exposition « d » définie dans la norme NF P 10-202 (Référence DTU 20.1).
Les acrotères doivent être surmontés d'un couronnement.
Ce couronnement doit être solidarisé de façon durable avec le dessus d'acrotère et doit empêcher le passage de l'eau dans la maçonnerie de l'acrotère lorsque le relevé d'étanchéité ne recouvre pas la face supérieure de l'acrotère et que celui-ci ne comporte pas le dispositif étanche visé au paragraphe 7.2.3.2.3.
La hauteur de la partie inférieure en béton doit au moins être égale à la hauteur du relevé d'étanchéité augmentée de celle du bandeau de recouvrement (ou dispositif équivalent), sans pouvoir dépasser la limite de hauteur des acrotères bas.
Le ferraillage de cette partie doit être la même que celui des acrotères bas.
Les matériaux de maçonnerie utilisables à la partie supérieure de l'acrotère sont exclusivement des éléments de maçonnerie pleins enduits ou apparents. L'ouvrage en éléments de maçonnerie présentera une masse surfacique supérieure ou égale à 200 kg/m2.
La justification de la stabilité de la partie supérieure de l'acrotère doit être effectuée par référence à la norme NF P 10-202 (Référence DTU 20.1).
B) Acrotères mixtes dans leur épaisseur (figure 26)
 : Gros oeuvre en maçonnerie des toitures destinées à recevoir un revêtement d'étanchéité/DTU 20.12 (NF P10-203-1) (septembre 1993)/image/fig_AGC_1_149.png)
Figure 26 Acrotère haut mixte dans l'épaisseur
Ces acrotères sont réalisés :
du côté intérieur, en béton armé,
du côté extérieur, en maçonnerie d'éléments choisis uniquement parmi les matériaux ci-après : moellons, pierre de taille, briques pleines, blocs pleins en béton de granulats courants.
Ils sont admis dans les mêmes conditions que le cas précédent.
Ils doivent être surmontés d'un couronnement ( voir paragraphe 7.2.4.1.4 a).
La partie inférieure en béton armé ne doit pas dépasser la limite de hauteur des acrotères bas. Elle doit être armée comme ces derniers.
La stabilité doit être justifiée comme dans le cas précédent.
7.2.4.2 Acrotères préfabriqués en béton
7.2.4.2.1 Ouvrages de technique courante
Les dispositions à respecter sont définies dans la norme NF P 10-210 (Référence DTU 22.1) 4 qui distingue :
-
les acrotères indépendants de la façade :
de type muret ( figure 27) ;
à talon, liaisonnés à une forme de pente adhérente à l'élément porteur selon dispositions de l'article 6 ( figure 28) ;
les acrotères incorporés aux panneaux de façade du dernier niveau ( figure 29).
Murs extérieurs en panneaux préfabriqués de grandes dimensions.
 : Gros oeuvre en maçonnerie des toitures destinées à recevoir un revêtement d'étanchéité/DTU 20.12 (NF P10-203-1) (septembre 1993)/image/fig_AGC_1_214.png)
Figure 27 Acrotères préfabriqués de type muret
 : Gros oeuvre en maçonnerie des toitures destinées à recevoir un revêtement d'étanchéité/DTU 20.12 (NF P10-203-1) (septembre 1993)/image/fig_AGC_1_215.png)
Figure 28 Acrotère préfabriqué à talon liaisonné à une forme de pente
 : Gros oeuvre en maçonnerie des toitures destinées à recevoir un revêtement d'étanchéité/DTU 20.12 (NF P10-203-1) (septembre 1993)/image/fig_AGC_1_216.png)
Figure 29 Acrotère incorporé au panneau de façade
A) Dispositions générales
Les acrotères sont liés de façon rigide à la structure porteuse.
Les dispositions d'armatures (section renforts, pourcentage, ...) sont définies par la norme NF P 10-210 (Référence DTU 22.1)
B) Stabilité
Sauf dispositions particulières, les acrotères préfabriqués doivent être, lors de leur pose, autostables sous leur propre poids.
Ils doivent comporter également des armatures de liaisonnement avec le gros oeuvre dont ils sont solidaires, ou tous autres dispositifs de liaisons mécaniques.
C) Raccordement aux ouvrages de gros oeuvre et d'étanchéité des toitures-terrasses
Sauf lorsque l'étanchéité revêt les acrotères jusqu'à leur arête extérieure, les acrotères doivent comporter, à la partie supérieure du relevé d'étanchéité, l'ouvrage prévu pour empêcher les eaux de ruissellement de s'introduire derrière les relevés d'étanchéité (bandeau saillant - retrait du relief).
Les joints entre éléments préfabriqués (contour extérieur - intérieur - dessus d'acrotère, bandeau saillant, ...) doivent être traités, de manière qu'aucune infiltration ne puisse se produire derrière le relevé d'étanchéité.
Pour le traitement des joints on se référera aux Règles SNJF.
7.2.4.2.2 Acrotères préfabriqués associés à un système de gros oeuvre relevant d'un Avis Technique
Ces systèmes doivent bénéficier d'un Avis Technique 5 favorable pour cet emploi.
Ou son équivalent dans les conditions indiquées dans l'avant propos.
A)
des acrotères préfabriqués indépendants des panneaux de façades sous-jacents et raccordés à la partie courante du gros oeuvre de la toiture-terrasse par une forme de pente coulée sur place ( figure 28) ;
B)
des acrotères incorporés au voile extérieur de façade ( figure 31) et nécessitant la mise en oeuvre d'une costière métallique fixée sur le plancher pour permettre de réaliser le relevé d'étanchéité et assurer le libre mouvement du panneau de façade (panneau librement dilatable).
 : Gros oeuvre en maçonnerie des toitures destinées à recevoir un revêtement d'étanchéité/DTU 20.12 (NF P10-203-1) (septembre 1993)/image/fig_AGC_1_218.png)
Figure 31 Acrotère préfabriqué incorporé au voile extérieur de façade (librement dilatable)
Cette disposition est réservée aux toitures inaccessibles.
Dans le cas de toitures accessibles, cette disposition nécessite une protection du relevé d'étanchéité par bardage démontable empêchant le passage de l'eau, et descendant jusqu'au niveau de la protection de l'étanchéité.
Du fait de la présence de la costière métallique, les dispositions concernant les reliefs ( voir paragraphes 7.2.3.2.3 et 7.2.3.2.4) sont modifiées comme suit ( figures 32 et 33) :
-
L'ouvrage empêchant l'introduction des eaux de ruissellement est constitué, soit d'un retrait avec becquet de dimensions conformes à la figure 32, soit d'une couvertine métallique ( figure 33).
 : Gros oeuvre en maçonnerie des toitures destinées à recevoir un revêtement d'étanchéité/DTU 20.12 (NF P10-203-1) (septembre 1993)/image/fig_AGC_1_219.png)
Figure 32 Détail du becquet de la figure 31
 : Gros oeuvre en maçonnerie des toitures destinées à recevoir un revêtement d'étanchéité/DTU 20.12 (NF P10-203-1) (septembre 1993)/image/fig_AGC_1_220.png)
Figure 33 Détail de la figure 31 : cas d'une couvertine
-
La hauteur de la costière métallique au-dessus de la protection du revêtement d'étanchéité est comprise entre :
150 mm et 200 mm lorsque la costière n'est pas isolée thermiquement,
150 mm et 350 mm lorsque la costière est isolée thermiquement.
C)
des acrotères incorporés au voile extérieur, mais comportant des liaisons rigides.
Ces procédés sous Atec sont assimilés au traditionnel en ce qui concerne les dispositions en toiture-terrasse ( figure 29).
7.2.5 Costières
7.2.5.1 Principes de réalisation
Les costières sont solidaires de l'élément porteur.
Elles sont simples ou doubles.
Elles sont réalisées :
en béton armé sur les terrasses accessibles,
en béton ou en maçonnerie pleine ou blocs perforés sur les terrasses inaccessibles.
Lorsqu'elles sont en maçonnerie, la face recevant l'étanchéité doit comporter un enduit en mortier de ciment.
Dans certains cas les costières peuvent également être réalisées à l'aide de bandes d'équerres métalliques ( voir paragraphe 7.2.3.2.1). Ce type de costière n'est pas traité dans la présente norme.
L'épaisseur minimale des costières est de :
100 mm lorsqu'elles sont en béton,
150 mm lorsqu'elles sont en maçonnerie.
7.2.5.2 Costières simples
Un dispositif doit être prévu pour empêcher l'eau de pluie de s'infiltrer derrière la costière. Ce dispositif peut être :
-
un bandeau en béton armé ( figure 34),
 : Gros oeuvre en maçonnerie des toitures destinées à recevoir un revêtement d'étanchéité/DTU 20.12 (NF P10-203-1) (septembre 1993)/image/fig_AGC_1_150.png)
Figure 34 Cas du bandeau béton
-
ou d'autres systèmes tels que, des bandes de solins métalliques mises en place dans une engravure ( figure 35).
 : Gros oeuvre en maçonnerie des toitures destinées à recevoir un revêtement d'étanchéité/DTU 20.12 (NF P10-203-1) (septembre 1993)/image/fig_AGC_1_151.png)
Figure 35 Cas d'un solin métallique
 : Gros oeuvre en maçonnerie des toitures destinées à recevoir un revêtement d'étanchéité/DTU 20.12 (NF P10-203-1) (septembre 1993)/image/fig_AGC_1_221.png)
Figure 35 bis Variante de la figure 35
Les dispositions et prescriptions concernant la forme, l'épaisseur minimale et la hauteur minimale des reliefs sont applicables ( voir paragraphe 7.2.3).
7.2.5.3 Costières doubles
Les costières doubles correspondent à des joints de gros oeuvre ( voir paragraphe 7.4.3).
7.2.6 Souches et murs de locaux divers
7.2.6.1 Souches
A) Relief
Le support du relevé est constitué de béton.
B) Dispositif écartant les eaux de ruissellement :
sont considérés ici uniquement les bandeaux à larmier saillant.
C)
La résistance thermique des parois des souches de conduits de fumée est définie dans la norme NF P 51-201 (Référence DTU 24.1) relative aux travaux de fumisterie.
D)
La souche, au dessus du relief lorsqu'elle est en maçonnerie d'éléments doit être revêtue dans la partie hors toiture d'un enduit de mortier à base de liants hydrauliques conforme à la norme NF P 15-201 (Référence DTU 26.1). Cet enduit doit être armé d'un grillage à mailles rectangulaires tel que défini dans cette norme. De plus lorsque cette maçonnerie a une épaisseur inférieure à 20 cm, l'enduit doit être complété par un revêtement d'imperméabilisation de façade de type I4 au sens du NF DTU 42.1.
Les DPM précisent à qui incombe la charge de cette prestation.
E)
Un ouvrage de protection doit être prévu à la partie supérieure de la souche pour éviter toute infiltration entre les conduits et leur habillage ( figures 36 et 37).
 : Gros oeuvre en maçonnerie des toitures destinées à recevoir un revêtement d'étanchéité/DTU 20.12 (NF P10-203-1) (septembre 1993)/image/fig_AGC_2_112.png)
Figure 36 Souche : coupe verticale
 : Gros oeuvre en maçonnerie des toitures destinées à recevoir un revêtement d'étanchéité/DTU 20.12 (NF P10-203-1) (septembre 1993)/image/fig_AGC_1_113.png)
Figure 37 Souche : coupe horizontale
F) Cas particulier : souche désolidarisée des éléments porteurs.
Lorsque la souche est désolidarisée de l'élément porteur (par exemple, souche de conduit de fumée librement dilatable), elle doit être entourée de costières solidaires de l'élément porteur, destinées à recevoir le relevé d'étanchéité ( figure 38).
 : Gros oeuvre en maçonnerie des toitures destinées à recevoir un revêtement d'étanchéité/DTU 20.12 (NF P10-203-1) (septembre 1993)/image/fig_AGC_1_114.png)
Figure 38 Souche désolidarisée des éléments porteurs
7.2.6.2 Murs de locaux divers (machinerie d'ascenseur, divers, ...) et murs de retrait d'étage
La partie inférieure, destinée à recevoir le revêtement d'étanchéité, est réalisée en béton (Figure 39).
 : Gros oeuvre en maçonnerie des toitures destinées à recevoir un revêtement d'étanchéité/DTU 20.12 (NF P10-203-1) (septembre 1993)/image/fig_AGC_1_223.png)
Figure 39 Relief des murs
7.2.7 Seuils
7.2.7.1 Seuils à relief
Un seuil est un relief permettant l'accès à une toiture-terrasse en évitant la pénétration de l'eau à l'intérieur des locaux.
L'appui de baie doit respecter les dispositions de la norme NF P 10-202 (Référence DTU 20.1) : pente vers l'extérieur de 10 % minimum, rejingot de hauteur h ≥ 20 mm à 40 mm (selon mode de réalisation de l'appui).
La hauteur des seuils doit être suffisante pour permettre l'exécution des relevés d'étanchéité. La hauteur minimale H de ces relevés est indiquée en 7.2.3.2.4. Différentes conceptions sont possibles pour satisfaire à cette exigence :
-
Relief simple ( figures 41 et 42).
 : Gros oeuvre en maçonnerie des toitures destinées à recevoir un revêtement d'étanchéité/DTU 20.12 (NF P10-203-1) (septembre 1993)/image/fig_AGC_1_225.png)
Figure 41 Protection de l'étanchéité sur couche de désolidarisation
 : Gros oeuvre en maçonnerie des toitures destinées à recevoir un revêtement d'étanchéité/DTU 20.12 (NF P10-203-1) (septembre 1993)/image/fig_AGC_1_226.png)
Figure 42 Protection de l'étanchéité par dalles sur plots
-
Relief avec ressaut ( figures 43 et 44) ; dans ce cas :
La pente de la partie courante de toiture doit être dirigée vers l'extérieur.
Le gros-oeuvre doit permettre la réalisation d'un relevé d'étanchéité et de sa protection en tableau de baie de façon à réserver une garde d'eau de 50 mm au-dessus de la protection d'étanchéité au droit du seuil.
 : Gros oeuvre en maçonnerie des toitures destinées à recevoir un revêtement d'étanchéité/DTU 20.12 (NF P10-203-1) (septembre 1993)/image/fig_AGC_1_227.png)
Figure 43 Seuil : relief avec ressaut (en point haut) sans décrochement de structure
 : Gros oeuvre en maçonnerie des toitures destinées à recevoir un revêtement d'étanchéité/DTU 20.12 (NF P10-203-1) (septembre 1993)/image/fig_AGC_1_228.png)
Figure 44 Seuil : relief avec ressaut (en point haut) avec décrochement de structure
Les solutions avec caniveau devant le seuil ne sont pas traitées dans le présent document.
7.2.7.2 Cas particulier des seuils à niveau ( figures 45 et 46)
 : Gros oeuvre en maçonnerie des toitures destinées à recevoir un revêtement d'étanchéité/DTU 20.12 (NF P10-203-1) (septembre 1993)/image/fig_AGC_1_229.png)
Figure 45 Seuil à niveau - Vue en plan
 : Gros oeuvre en maçonnerie des toitures destinées à recevoir un revêtement d'étanchéité/DTU 20.12 (NF P10-203-1) (septembre 1993)/image/fig_AGC_1_230.png)
Figure 46 Seuil à niveau - Coupe
L'application de cette disposition doit être précisée par les DPM. Ce choix du maître d'oeuvre pourra résulter de la prise en compte de différents paramètres : dispositions constructives (ouverture abritée, pente à l'intérieur du local, ...), conditions d'occupation du local (permanente ou temporaire), nature du local sous-jacent et étanchéité requise vis-à-vis de ce local, etc.
Cette possibilité est limitée aux accès d'immeubles.
Cette disposition permet l'accès de plain pied au local par les handicapés mais peut avoir pour effet des pénétrations d'eaux à l'intérieur de ce local (refoulement de l'eau extérieure par le vent).
Les dispositions constructives sont les suivantes :
l'étanchéité et sa protection sont prolongées à l'intérieur du local sur 1 m à 2 m suivant l'exposition, avec des retours latéraux de 500 mm minimum.
une pente minimale de 2 % sur au moins 2 m est prévue devant l'entrée et dirigée vers l'extérieur.
7.2.8 Canalisations - Massifs
7.2.8.1 Réservations dans le gros oeuvre
Les canalisations sortant en terrasse doivent faire l'objet de réservations dans le gros oeuvre, de manière à éviter dans la mesure du possible le percement du béton durci.
On se référera au paragraphe 7.2.3.1 pour le respect des cotes d'implantation de ces ouvrages.
7.2.8.2 Canalisations isolées (ne passant pas à travers un dé en béton)
Pour le raccordement du revêtement d'étanchéité, il est nécessaire d'avoir un support constitué d'une canalisation métallique ( figure 47). Si la canalisation traversante n'est pas métallique (PVC, ...), il est nécessaire de sceller dans le gros oeuvre un fourreau métallique solidaire de l'élément porteur ( figure 48).
 : Gros oeuvre en maçonnerie des toitures destinées à recevoir un revêtement d'étanchéité/DTU 20.12 (NF P10-203-1) (septembre 1993)/image/fig_AGC_1_117.png)
Figure 47 Traversée de canalisation métallique
 : Gros oeuvre en maçonnerie des toitures destinées à recevoir un revêtement d'étanchéité/DTU 20.12 (NF P10-203-1) (septembre 1993)/image/fig_AGC_1_116.png)
Figure 48 Traversée de canalisation non métallique
Ce fourreau doit avoir une hauteur minimale de 150 mm par rapport au dessus de la protection d'étanchéité.
7.2.8.3 Canalisations passant dans un dé en béton
Le massif ou dé en béton correspond à une ou plusieurs canalisations traversantes.
Le massif est solidaire de l'élément porteur ( figures 49 et 50).
 : Gros oeuvre en maçonnerie des toitures destinées à recevoir un revêtement d'étanchéité/DTU 20.12 (NF P10-203-1) (septembre 1993)/image/fig_AGC_1_118.png)
Figure 49 Cas de la canalisation non métallique
 : Gros oeuvre en maçonnerie des toitures destinées à recevoir un revêtement d'étanchéité/DTU 20.12 (NF P10-203-1) (septembre 1993)/image/fig_AGC_1_120.png)
Figure 50 Cas de la canalisation métallique
Les traversées à l'intérieur du dé en béton s'effectuent comme dans le cas précédent selon la nature des canalisations.
Les dispositions du dé en béton doivent permettre d'assurer l'étanchéité de la toiture au droit de ce dispositif (par exemple, couvertine métallique raccordée à la canalisation).
Lorsqu'ils sont habillés par le revêtement d'étanchéité ( figure 50), les dés doivent présenter une pente pour rejeter les eaux vers l'extérieur.
Dans tous les cas, la hauteur du relief du dé doit être de 150 mm minimum, mesurée au-dessus de la protection du revêtement d'étanchéité.
7.2.8.4 Massifs divers - Socles
7.2.8.4.1 Généralités
Les socles, dés ou massifs, sont des éléments en béton armé ou non, solidaires du gros oeuvre des toitures-terrasses ou disposés au-dessus du revêtement d'étanchéité et destinés aux équipements de ces toitures (terrasses techniques ou à zones techniques).
7.2.8.4.2 Ouvrages solidaires du gros oeuvre
(socles pour lampadaires - plots pour chemins de roulement de nacelles de nettoyage, etc.)
Le gros oeuvre des toitures-terrasses devra tenir compte de l'implantation de ce type de relief et respecter la règle concernant les distances par rapport aux ouvrages voisins ( voir paragraphe 7.2.3.1).
Il devra tenir compte des sollicitations à reprendre par la structure, notamment dans le cas d'ancrage ou de charges ponctuelles.
Les socles solidaires de l'élément porteur doivent être prévus selon l'un des dispositifs ci-après :
bandeau à larmier ou tout autre dispositif équivalent, lorsque l'étanchéité ne revêt pas la face supérieure du socle ;
sans bandeau à larmier (ni dispositif équivalent) lorsque le relevé d'étanchéité se retourne sur la face supérieure du socle.
Ce dernier cas n'est possible que si l'ouvrage supporté par le socle permet le raccordement du revêtement d'étanchéité ( figure 51).
 : Gros oeuvre en maçonnerie des toitures destinées à recevoir un revêtement d'étanchéité/DTU 20.12 (NF P10-203-1) (septembre 1993)/image/fig_AGC_1_121.png)
Figure 51 Socle pour lampadaire
7.2.8.4.3 Ouvrages disposés au-dessus du revêtement d'étanchéité
(massifs ventilateurs VMC - supports de gaines, ...)
Dans tous les cas, ils doivent faire l'objet de prescriptions particulières définies dans les DPM (Documents Particuliers du Marché).
7.2.9 Reliefs divers (ressauts, retombées, poutres saillantes, etc.)
Lorsqu'il est prévu un revêtement d'étanchéité appliqué directement sur le béton, les reliefs doivent comporter en tête, des angles arrondis ou chanfreinés.
7.2.9.1
Pour les ressauts, dans le cas des revêtements en asphalte, lorsque les revêtements d'étanchéité des parties courantes sont protégés par un asphalte gravillonné et ceux des pentes verticales par un enduit de mortier de ciment grillagé, le dessus du ressaut doit avoir un défoncé de 10 mm de profondeur et de 25 mm de largeur à partir du bord du ressaut ( figure 52).
 : Gros oeuvre en maçonnerie des toitures destinées à recevoir un revêtement d'étanchéité/DTU 20.12 (NF P10-203-1) (septembre 1993)/image/fig_AGC_1_110.png)
Figure 52 Ressaut avec étanchéité asphalte
7.2.9.2 Poutres saillantes isolées thermiquement ou non
Les évacuations d'eaux pluviales ne se font pas au travers des poutres.
7.3 Rives sans acrotères
7.3.1 Généralités
Lorsque la toiture-terrasse ne comporte pas à sa périphérie d'acrotères ou de costières limitant les parties courantes, les ouvrages correspondants sont désignés par rives.
On distingue, au niveau du gros oeuvre :
les rives avec larmier présentant un débord par rapport au mur sous jacent,
les rives nues, sans larmier, qui nécessitent des ouvrages complémentaires d'étanchéité pour rejeter l'eau vers l'extérieur.
7.3.2 Cas de rives avec débord (et larmier)
Le gros oeuvre doit comporter :
un débord minimal de 80 mm par rapport au nu fini,
-
un larmier ( figure 53).
 : Gros oeuvre en maçonnerie des toitures destinées à recevoir un revêtement d'étanchéité/DTU 20.12 (NF P10-203-1) (septembre 1993)/image/fig_AGC_1_231.png)
Figure 53 Rive avec débord
Les DPM (Documents Particuliers du Marché) doivent signaler les ouvrages rapportés (exemple : bandes de rive métalliques).
7.3.3 Cas des rives sans débord (rives nues) ( figures 54 et 54 bis)
 : Gros oeuvre en maçonnerie des toitures destinées à recevoir un revêtement d'étanchéité/DTU 20.12 (NF P10-203-1) (septembre 1993)/image/fig_AGC_1_232.png)
Figure 54 Rive sans débord
 : Gros oeuvre en maçonnerie des toitures destinées à recevoir un revêtement d'étanchéité/DTU 20.12 (NF P10-203-1) (septembre 1993)/image/fig_AGC_1_233.png)
Figure 54 bis Rive sans débord
Ce cas est réservé aux édicules de petites dimensions (≤ 20 m²).
Cette disposition entraîne des risques inévitables de ruissellement des eaux de pluie.
7.4 Joints de gros oeuvre
7.4.1 Généralités
Les joints de gros oeuvre correspondent à des fractionnements de la structure porteuse afin de tenir compte :
des mouvements éventuels du sol de fondation (joints de tassement),
des mouvements d'origine thermique (joint de dilatation-retrait).
On distingue :
les joints de gros oeuvre de niveaux décalés en toiture,
les joints de gros oeuvre de même niveau.
7.4.2 Joints de niveaux décalés en toiture ( figure 55)
 : Gros oeuvre en maçonnerie des toitures destinées à recevoir un revêtement d'étanchéité/DTU 20.12 (NF P10-203-1) (septembre 1993)/image/fig_AGC_1_234.png)
Figure 55 Joint de niveau décalé
Le joint de gros oeuvre se traite à partir :
d'une costière simple,
et d'un dispositif empêchant l'eau de pluie de s'infiltrer dans le joint.
Les dispositions concernant les joints de gros oeuvre à niveaux décalés sont données en 7.2.5.
Ce type de joint ne peut, sauf dispositions spéciales, assurer l'étanchéité à l'air.
7.4.3 Joints de toiture de même niveau
7.4.3.1 Conditions d'emploi
On distingue :
-
Les joints saillants sur costières de type courant (voir 7.4.3.3):
avec un dispositif spécial d'étanchéité de joint (voir paragraphe 7.4.3.3.1),
avec un couronnement (voir paragraphe 7.4.3.3.2).
Les joints sur costières de hauteur réduite ou joints plats surélevés ( voir paragraphe 7.4.3.4).
Les joints sur costières spéciaux pour terrasses jardins ( voir paragraphe 7.4.3.5).
Les joints plats, réservés aux terrasses circulables.
Le tableau suivant donne les conditions d'emploi des différents types de joints en fonction de l'usage de la toiture.
 : Gros oeuvre en maçonnerie des toitures destinées à recevoir un revêtement d'étanchéité/DTU 20.12 (NF P10-203-1) (septembre 1993)/image/tab_AGC_2_3.png)
Tableau 3 Conditions d'emploi des différents types de joints
7.4.3.2 Dispositions générales
Les joints doivent se prolonger en façade (relevés) dans leur alignement.
Ils doivent être implantés en dehors des jardinières, fosses à arbres, bassins, ...
Ils ne doivent pas être traversés par un fil d'eau.
7.4.3.3 Joints saillants courants
7.4.3.3.1 Joints saillants courants avec dispositif d'étanchéité de joint
Les dispositions et prescriptions concernant la nature, la forme, l'épaisseur minimale et la hauteur minimale des costières sont définies en 7.2.3 et 7.2.5.
Les costières doubles doivent permettre la mise en place du dispositif d'étanchéité du joint et son mouvement sans entrave. Le gros oeuvre devra réserver ce joint et prévoir un logement pour placer le dispositif défini par l'Atec correspondant :
-
soit un double chanfrein de 30 mm × 30 mm (dimensions minimales) ( figure 56) ;
 : Gros oeuvre en maçonnerie des toitures destinées à recevoir un revêtement d'étanchéité/DTU 20.12 (NF P10-203-1) (septembre 1993)/image/fig_AGC_1_235.png)
Figure 56 Joint saillant avec dispositif d'étanchéité : réservation
-
soit une rainure en creux de 20 mm × 40 mm (dimensions minimales) de chaque côté ( figure 57).
 : Gros oeuvre en maçonnerie des toitures destinées à recevoir un revêtement d'étanchéité/DTU 20.12 (NF P10-203-1) (septembre 1993)/image/fig_AGC_1_236.png)
Figure 57 Joint saillant avec dispositif d'étanchéité : réservation
La face supérieure des costières peut être horizontale ou légèrement inclinée vers l'extérieur du joint. Les angles extérieurs des costières seront adoucis afin d'éviter une pliure d'angle du revêtement d'étanchéité raccordé au dispositif de joint.
Lorsque l'isolation thermique revêt la costière, y compris sa face supérieure, aucun chanfrein n'est à prévoir dans la costière.
Certains dispositifs de joint ne nécessitent aucune réservation (voir Avis Technique).
7.4.3.3.2 Joints saillants courants avec couronnement
Les dispositions et prescriptions concernant la nature, la forme, l'épaisseur et la hauteur minimale des costières sont définies en 7.2.3 et 7.2.5.
-
Couronnement réalisé par un ouvrage métallique en feuilles façonnées
Ce dispositif est réservé aux toitures inaccessibles.
Ce dispositif relève de la technique des couvertures en feuilles métalliques façonnées ( voir DTU P 34-211 à P 34-215, DTU 40-41 à 40-45).
Il n'assure pas l'étanchéité à l'air ni à la neige poudreuse.
7.4.3.4 Joints plats surélevés (ou de hauteur réduite) ( figures 60, 61 et 62)
7.4.3.4.1 Pour toitures accessibles aux piétons
 : Gros oeuvre en maçonnerie des toitures destinées à recevoir un revêtement d'étanchéité/DTU 20.12 (NF P10-203-1) (septembre 1993)/image/fig_AGC_1_239.png)
Figure 60 Exemple de joint plat surélevé - Terrasse avec protection par dalles sur plots avec pose directe des plots sur le revêtement d'étanchéité
 : Gros oeuvre en maçonnerie des toitures destinées à recevoir un revêtement d'étanchéité/DTU 20.12 (NF P10-203-1) (septembre 1993)/image/fig_AGC_1_240.png)
Figure 61 Exemple de joint plat surélevé - Terrasse dalles sur plots posés sur protection dure traditionnelle
 : Gros oeuvre en maçonnerie des toitures destinées à recevoir un revêtement d'étanchéité/DTU 20.12 (NF P10-203-1) (septembre 1993)/image/fig_AGC_1_241.png)
Figure 62 Exemple de joint plat surélevé - Terrasse accessible avec protection dure traditionnelle
Par définition, un joint plat surélevé correspond à des costières de faible hauteur mais non inférieure à 50 mm au-dessus de la protection disposée directement sur l'étanchéité ou au-dessus de l'étanchéité s'il n'y a pas de protection.
Les costières sont en béton.
Elles doivent, comme les costières de joints courants, présenter les mêmes réservations nécessaires à l'installation du dispositif de joint (voir paragraphe 7.4.3.3.1).
Le dispositif de joint relève de la procédure d'Avis Technique pour les revêtements d'étanchéité continue.
7.4.3.4.2 Pour toitures accessibles aux véhicules
D'une manière générale, il convient d'éviter autant que possible le joint plat surelevé.
Les joints plats surélevés doivent être limités aux longueurs strictement nécessaires (zones de circulations).
L'implantation du joint plat surélevé ne doit pas couper l'écoulement de l'eau (dispositif situé par exemple en point haut ou parallèle à la ligne de plus grande pente).
Les tracés non rectilignes (baïonnette - changement de direction) ne sont pas admis.
En fonction du système d'étanchéité, des réservations éventuelles sont à prévoir. (Voir l'Avis Techniques 6 spécifiques du dispositif d'étanchéité du joint).
Ou son équivalent dans les conditions indiquées dans l'avant propos.
Le support béton comprend une surélévation de 3 cm minimum de 50 cm de part et d'autre du joint (voir figure ci-dessous).
Lorsque la pente est obtenue par une forme adhérente, celle-ci sera en béton (cf. 6.1.2.2).
 : Gros oeuvre en maçonnerie des toitures destinées à recevoir un revêtement d'étanchéité/DTU 20.12 (NF P10-203-1) (septembre 1993)/image/fig_AGC_2_1.png)
Figure 62 bis Principe de gros oeuvre pour la mise en place du dispositif de joint plat surélevé sur toiture-terrasse accessible aux véhicules
7.4.3.5 Joints sur costières pour terrasses jardins
7.4.3.5.1 Conception générale :
On distingue plusieurs cas selon la hauteur des costières et les dispositions du joint.
-
Joint visitable recouvert par des dalles arasées au même niveau que celui de la terre végétale ( figure 63) ou à un niveau minimum de 150 mm au-dessus de celle-ci ( figure 64).
 : Gros oeuvre en maçonnerie des toitures destinées à recevoir un revêtement d'étanchéité/DTU 20.12 (NF P10-203-1) (septembre 1993)/image/fig_AGC_1_242.png)
Figure 63 Terrasse jardin - Joint enterré sous dallette
 : Gros oeuvre en maçonnerie des toitures destinées à recevoir un revêtement d'étanchéité/DTU 20.12 (NF P10-203-1) (septembre 1993)/image/fig_AGC_1_244.png)
Figure 64 Terrasse jardin - Joint saillant
-
Joint enterré sur costières basses arasées au niveau supérieur de la couche drainante ( figure 65).
 : Gros oeuvre en maçonnerie des toitures destinées à recevoir un revêtement d'étanchéité/DTU 20.12 (NF P10-203-1) (septembre 1993)/image/fig_AGC_1_243.png)
Figure 65 Joint enterré sur costières basses
-
Joint semi-enterré protégé par des dallettes enterrées ( figure 66).
 : Gros oeuvre en maçonnerie des toitures destinées à recevoir un revêtement d'étanchéité/DTU 20.12 (NF P10-203-1) (septembre 1993)/image/fig_AGC_1_245.png)
Figure 66 Joint semi-enterré protégé par dallettes
7.4.3.5.2 Nature des costières :
En béton armé. L'épaisseur minimale des costières est de 100 mm.
7.4.3.5.3 Hauteur des costières :
Elle est fonction du type de joint défini plus haut.
Dans les cas (b) et (c) et (a) correspondant à la figure 63, la hauteur H minimale prise entre le dessus de la protection de l'étanchéité et la partie supérieure du dispositif de joint est de 50 mm.
7.4.3.5.4 Réservations
Selon les dispositions du joint utilisé, les réservations à prévoir pour la mise en place du dispositif sont celles définies pour les costières de joint courant ( voir paragraphe 7.4.3.3.1).
7.4.3.6 Joints plats pour toitures terrasses accessibles aux piétons
Les joints plats doivent être limités aux longueurs strictement nécessaires (zones de circulations).
L'implantation du joint plat ne doit pas couper l'écoulement de l'eau (dispositif situé par exemple en point haut ou parallèle à la ligne de plus grande pente).
Les tracés non rectilignes (baïonnette - changement de direction) ne sont pas admis, sauf étude particulière.
En fonction du système d'étanchéité, des réservations éventuelles sont à prévoir.
Lorsque la pente est obtenue par une forme adhérente, les réservations sont à prévoir dans cet ouvrage ( voir figure 67).
 : Gros oeuvre en maçonnerie des toitures destinées à recevoir un revêtement d'étanchéité/DTU 20.12 (NF P10-203-1) (septembre 1993)/image/fig_AGC_1_246.png)
Figure 67 Principe de réservation gros oeuvre pour mise en place dispositif joint plat
Certains dispositifs de joints peuvent admettre des dispositions particulières (voir Avis techniques correspondant) en ce qui concerne les réservations à prévoir dans le gros oeuvre.
7.5 Dispositifs de collecte et d'évacuation des eaux pluviales
7.5.1 Dispositions générales ( voir annexe C)
L'évacuation des eaux pluviales sur les toitures-terrasses plates ou inclinées est assurée à partir :
-
d'ouvrages de collecte :
chéneaux, caniveaux,
noues.
-
d'ouvrages d'évacuation proprement dits :
entrées d'eaux pluviales (EP),
trop-plein.
7.5.2 Nature des ouvrages de collecte
Les caniveaux et chéneaux sont réalisés en béton armé.
Ils ne doivent pas comporter de joints plats, ni de joints plats surélevés.
7.5.3 Réservations
Les ouvrages de collecte et d'évacuation des eaux pluviales doivent présenter les réservations nécessaires pour être raccordés aux canalisations d'eaux pluviales.
Les raccordements aux canalisations pouvant s'effectuer par des moignons cylindriques ou tronconiques ( figures 68 et 69), les réservations dans le gros oeuvre devront tenir compte de l'encombrement de ces dispositifs ainsi que des tolérances d'implantation.
 : Gros oeuvre en maçonnerie des toitures destinées à recevoir un revêtement d'étanchéité/DTU 20.12 (NF P10-203-1) (septembre 1993)/image/fig_AGC_1_247.png)
Figure 68 Entrée eaux pluviales moignon cylindrique
 : Gros oeuvre en maçonnerie des toitures destinées à recevoir un revêtement d'étanchéité/DTU 20.12 (NF P10-203-1) (septembre 1993)/image/fig_AGC_1_248.png)
Figure 69 Entrée eaux pluviales moignon tronconique
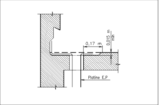
Par ailleurs, lorsque le revêtement d'étanchéité est prévu posé directement sur l'élément porteur, il est nécessaire de prévoir un encuvement ( figure 70) permettant de mettre en place la platine du dispositif d'entrée d'eau, sans surépaisseur.
 : Gros oeuvre en maçonnerie des toitures destinées à recevoir un revêtement d'étanchéité/DTU 20.12 (NF P10-203-1) (septembre 1993)/image/fig_AGC_1_130.png)
Figure 70 Encuvement pour pose platine eaux pluviales
Lorsque l'élément porteur est surmonté d'une forme de pente adhérente, le défoncé peut être obtenu directement dans la forme de pente.
Dans le cas où le dispositif d'entrée d'eau est situé à proximité d'un angle, le défoncé éventuel à ménager est à prévoir sur les deux faces de l'angle ( figure 71).
 : Gros oeuvre en maçonnerie des toitures destinées à recevoir un revêtement d'étanchéité/DTU 20.12 (NF P10-203-1) (septembre 1993)/image/fig_AGC_1_249.png)
Figure 71 Réservation d'angle
Lorsque des trop-pleins sont prévus dans les acrotères ou dans les chéneaux, les réservations à prévoir comportent des trous de section appropriée, disposés en pente vers l'extérieur ( figure 72).
 : Gros oeuvre en maçonnerie des toitures destinées à recevoir un revêtement d'étanchéité/DTU 20.12 (NF P10-203-1) (septembre 1993)/image/fig_AGC_2_131.png)
Figure 72 Réservation d'un trop-plein dans un acrotère
7.5.4 Dispositions constructives - Armatures
Le pourcentage d'armatures longitudinales à prévoir correspond aux prescriptions des Règles de calcul du béton armé (Règles BAEL) en vigueur.
7.5.5 Autres dispositions
Les dispositions concernant :
l'implantation des ouvrages d'évacuation,
la section des chéneaux et caniveaux,
les noues,
les descentes pluviales,
les trop-pleins,
sont développées à l'annexe C.
7.6 Ouvrages divers
7.6.1 Autres pénétrations (Ventilations - Crosse TV - Scellements - Traversées diverses)
Les pénétrations diverses nécessitent l'implantation préalable et les réservations correspondantes dans le gros oeuvre.
Les percements après coup sont tolérés dans le cas de petites sections dans les éléments porteurs en béton armé et non admis dans ceux en béton précontraint.
7.6.2 Balcons avec revêtement d'étanchéité
Les balcons recevant un revêtement d'étanchéité traditionnel doivent être traités comme des terrasses accessibles (acrotère, relevés contre façades, ouvrages d'évacuation des eaux, protection dure, ...).
Des procédés non traditionnels (étanchéité liquide par exemple) relevant de la procédure d'Avis technique, peuvent être utilisés sur des balcons non bordés par des acrotères, sans toutefois s'affranchir des autres dispositions telles que reliefs contre façades ...
7.6.3 Rampes pour véhicules
Les rampes d'accès des véhicules aux toitures sont constituées par un élément porteur de type A ou B ( voir annexe A).
Lorsqu'il y a protection en dur du revêtement d'étanchéité, la structure doit comporter des dispositions permettant de reprendre les efforts transmis par cette protection ( figure 73).
 : Gros oeuvre en maçonnerie des toitures destinées à recevoir un revêtement d'étanchéité/DTU 20.12 (NF P10-203-1) (septembre 1993)/image/fig_AGC_1_133.png)
Figure 73 Exemple d'accrochage des protections en dur des rampes pour véhicules
L'évacuation des eaux doit pouvoir être assurée (caniveau en pied de rampe par exemple).
7.6.4 Fosse à arbres
Ce type d'ouvrage doit faire l'objet de dispositions particulières définies dans les DPM.
S'il comporte un fond fermé, un dispositif d'évacuation des eaux pluviales doit être prévu.
7.6.5 Protection par dallage béton armé pour parcs accessibles aux véhicules
7.6.5.1 Véhicules légers, caractérisés par une charge à l'essieu ≤ 2 t
Les dispositions ad hoc sont mentionnées dans la norme NF P 84-204 (Référence DTU 43.1) en ce qui concerne l'épaisseur minimale, les armatures minimales et le fractionnement.
La fourniture et la mise en oeuvre de ces protections relèvent de l'entrepreneur d'étanchéité ( voir NF P 84-204-2 CCS du DTU 43.1).
7.6.5.2 Véhicules lourds, caractérisés par une charge à l'essieu > 2 t
Ce type d'ouvrage est à réaliser par le gros oeuvre. Il nécessite une étude particulière prenant en compte notamment les caractéristiques de l'étanchéité et de l'isolant éventuel.
Pour ce sujet, se référer à l'annexe D.
7.6.6 Protection par dallage béton armé pour chemin de roulement des appareils d'entretien des façades
Ce type d'ouvrage est à réaliser par le gros oeuvre. Il nécessite une étude particulière prenant en compte notamment les caractéristiques de l'étanchéité et de l'isolant éventuel.
Pour ce sujet, se référer à l'annexe D.
 : Gros oeuvre en maçonnerie des toitures destinées à recevoir un revêtement d'étanchéité/DTU 20.12 (NF P10-203-1) (septembre 1993)/image/fig_AGC_1_4.png)
 : Gros oeuvre en maçonnerie des toitures destinées à recevoir un revêtement d'étanchéité/DTU 20.12 (NF P10-203-1) (septembre 1993)/image/fig_AGC_1_6.png)
Cette prescription découle des exigences de réalisation, d'entretien et de réfection des ouvrages d'étanchéité.